Сарай для дачи может стать не только местом для хранения всего необходимого инвентаря, а и декоративной постройкой
Сарай для дачи своими руками – это самый простой способ в кратчайшие сроки получить минимально необходимый уровень комфорта. Когда первая радость от приобретения участка пройдет и станет вопрос реального освоения участка, именно хозблок – первая необходимая постройка. Пока жилой дом будет только возводиться, он послужит местом для хранения всего необходимого инвентаря. А после завершения строительства сарай может как сохранить свои первоначальные функции, выполняя роль кладовой, так и стать местом для хранения дров или, например, курятником.
Сарай для дачи — это простой способ в кратчайшие сроки получить минимально необходимый уровень комфорта
Сарай может выполняя роль как кладовой, так и стать местом для хранения дров или, например, курятником
Деревянный сарай без фундамента
Преимущества и недостатки конструкции
В условиях нехватки времени и средств строительство хозяйственного блока из досок без фундамента является чуть ли не единственным выходом из положения. Конечно, обойтись без, образно говоря, скрытой части айсберга возможно. И мы изложим инструкцию, как это сделать. Но у этого метода есть очевидные недостатки:
- недолговечность конструкции;
- вероятность разрушения при урагане;
- слабая теплоизоляция.
Однако два больших плюса, пожалуй, перевешивают указанные недостатки:
- скорость строительства (практически один-два дня);
- дешевизна метода очевидна.
Что ж, приступим к пошаговому описанию процесса.
Подготовительный этап
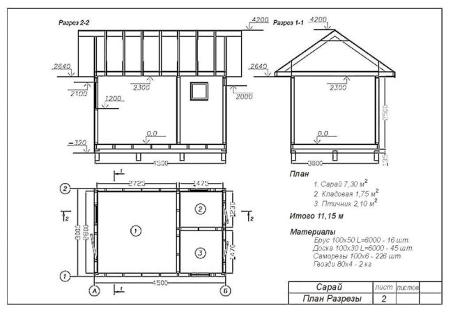
На начальной стадии необходимо сделать эскиз или чертёж. Ведь любая, даже простейшая постройка нуждается хоть в каком-то проекте. Прежде всего, следует определиться с размерами сарая. Обычно достаточно длины 2 м, ширины 1,5 м, а высоты — до 2 м. Крышу можно запроектировать односкатную. Назначив подходящие величины габаритов, легко прочертить эскиз.
Чертёж сарая из досок без фундамента
Затем встаёт вопрос выбора материала. Здесь мы уже заранее определились, что это будут доски. Но какого формата? Лучше использовать необрезной материал — он обойдётся дешевле. Однако часть досок придётся закупить в виде обрезных заготовок. Хорошей экономии можно достичь, если делать стены по принципу «зубчатого профиля». Иногда такой метод ещё называют «ёлочкой» или «внахлёст». То есть необрезные доски окажутся чуть углублёнными, а обрезные — на облицовочной стороне. Главный плюс — можно не бояться рассыхания досок, так как их края не стыкуются между собой. Впрочем, обо всём по порядку.
Необходимо также рассчитать длину и количество досок. Возьмём для примера уже отмеченные нами габариты. Длина и высота сарая — 2 м, а ширина — 1,5 м, при этом крыша односкатная. В первую очередь нам понадобятся четыре вертикальных балки высотой 2 м с запасом по полметра для вкопки в землю. К тому же, две из них должны быть длиннее для создания уклона крыши. Итого: 2 бруска 100х100 по 2,5 м и 2 по 2,8 м либо все бруски по 2,8 м с запасом.
Для обвязывания этих стоек необходимо приобрести балки сечения 50х50 в количестве 4 штуки по 2 м и 4 шт. по 1,5 м, в соответствии с длиной и шириной сарая, либо все по 2 м с запасом.
Чтобы выяснить количество досок для обшивки стен, требуется посчитать периметр сарая. Получаем Р = 2+2+1,5+1,5 = 7 м. Будем использовать доски толщиной 30 мм и шириной 0,3 м. У необрезных заготовок эта величина будет минимальным возможным размером. Таким образом, получается, что нам понадобится 7/0,3 = 23,3 шт. Итак, нужно заготовить 24 доски длиной около 2,3 м. Из них 12 штук обрезных.
Для обрешётки крыши подойдёт такой же пиломатериал. С учётом кровельных свесов, уклона и ширины постройки, равной 1,5 м, длина кровли составит около 2 м. Поскольку основной габарит сарая тоже 2 м, мы застелим обрешёткой примерно 1,5 м. Значит, для крыши нам понадобится 1,5/0,3 = 5 досок длиной не менее 2 м. Итого: общим количеством досок с запасом обозначим 30 штук, из которых только 12 штук обрезных.
Однако нам понадобится ещё выложить пол. А для этого как раз необходим только обрезной материал. Причём придётся закрыть всю площадь поверхности размерами 1,5 х 2 м. То есть надо будет приготовить ещё 1,5/0,3 = 5 обрезных заготовок. Тогда общее количество увеличится до 35 штук, а сумма обрезных досок до 17 штук.
На обрешётку мы застелим рубероид размером согласно габаритам сарая, то есть 1,5 х 2 м. Итого: две метровых дорожки по 1,5 м каждая. Значит, количество рубероида принимаем равным 3 м. Сверху на этот разложенный материал мы закрепим лист профнастила габаритами, как у сарая, – 1,5 х 2 м.
Остаётся ещё выбрать подходящий материал для утепления. Можно использовать для этой цели минвату. Но она неприятно колет руки, а стоимость её довольно высока. Есть ещё один очень дешёвый и экологичный способ утепления. Достаточно где-то раздобыть несколько мешков опилок. Этот простейший, почти дармовой материал смешивают с небольшим количеством извести и закладывают в полиэтиленовые пакеты. И затем этими пакетами можно забить стены.
Совет. Через несколько недель после постройки сарая наверняка произойдёт усадка утеплителя. Тогда лучше взять ещё немного материала и дополнить возникшие пробелы.
Количество утеплителя можно рассчитать, определив площадь стен. Так как периметр у нас был равен 7 м, то общая площадь примерно 7х2,3 = 16,1 м2. Если теперь принять толщину утеплителя равной приближенно 0,1 м, то общий объём материала будет равен около 1,6 м3.
Вот сводная таблица, в которой для наглядности указаны все материалы с количеством относительно нашего примера:
| Используемый материал | Размер | Количество |
| Брус | 100 мм х100 мм х2,8 м | 4 шт. |
| Брус | 50 мм х50 мм х2,0 м | 4 шт. |
| Доска необрезная | 300х30х2300 мм | 18 шт. |
| Доска обрезная | 300х30х2300 мм | 17 шт. |
| Рубероид | ширина дорожки 1 м | 3 м |
| Профнастил | 2 х 1,5 м | 1 шт. |
| Утеплитель | 0,1 м | 1,6 м3 |
Гвоздей необходимо приобрести как можно больше, около 1 – 2 кг. В случае нехватки материальных средств часть досок можно оторвать от поддонов из-под кирпичей, если таковые достались задаром. После того как все материалы заготовлены, можно смело приступать к делу.
Сравнение цен на различные варианты постройки с учётом их качества
Самый дешевый сегмент подсобных помещений, где цены варьируются в пределах 11000 – 30000 р, представлен каркасными строениями небольшой площади. Так эконом-класс предполагает, как правило, голую коробку размером 1×1 м (2×1,5 или 2×2 м). В качестве обшивки используется вагонка, крыша застилается ондулином или рубероидом.
Каркасные сараи стоимостью от 30000 до 70000 находятся в средней ценовой категории. От недорогих строений они отличаются размерами (например, 3×3 или 6×2 м) и материалом обшивки.
Цена дорогих подсобок каркасного типа может достигать 160000 р. Например, сарай размером 5×4 м стоит в среднем около 85000–95000 р., 4×7 м – 133000 р., с перегородками – 155000р.
Например, цена на хозблок 3×4 м на основе металлического каркаса в базовой комплектации, включающую каркас, стены, кровлю с гидроизоляцией, дверь, составляет 113000 р. Стоимость с монтажом – около 156000 р. Сюда же надо добавить стоимость окна с установкой – 16700 р., утепление – 16500 р., внутреннюю отделку профнастилом – 32400 р., водосток – 7800р.
Такая постройка может служить как подсобным помещением, так и домиком для детейИсточник houzz.de
Выделяют еще категорию «Люкс», к которой относятся дизайнерские модели по индивидуальным заказам. Их стоимость может начинаться от 600000 р.
Контейнерные блоки стоят в пределах 40000 – 65000 р., в зависимости от размеров и комплектации. Типовые габариты: 2,4×2,4×2,4 м, а также 2,4×2,4×4.0 м и 2,4×2,4×5,8 м. Базовая комплектация включает внутреннюю отделку оргалитом, полы ДСП, теплоизоляцию и деревянные окна.
Расценки на постройки из пеноблоков начинаются примерно от 100000 р (4×2 м),150000 (3×4 м), 340000 (6×4 м).
Про выбор материалов и конструкции сарая смотрите на видео:
Как построить сарай из досок своими руками: 10 шагов
Для начала определимся с необходимыми инструментами. Что нам понадобится, указано в списке ниже.
- Дисковая пила или электролобзик;
- Обычная ножовка;
- Топор;
- Молоток, гвозди;
- Лопата;
- Рулетка.
Итак, приступаем к процессу, который умещается в 10 главных шагов:
- Первым делом необходимо выбрать место повыше, чтобы в дальнейшем избежать затоплений постройки от таяния снегов, и произвести разметку сарая.
- Теперь нужно выкопать четыре ямки и вставить в них бруски 100 х 100, предварительно заострённые топором на концах. Участок этих столбов, попадающий под землю, должен быть обёрнут толью или обмазан смолой для предохранения от гниения. Дальше желательно забетонировать эти колья или хорошо закопать щебёнкой с тщательной утрамбовкой. Два столба с будущей лицевой стороны должны оказаться на 30 – 40 см выше, чем другие два.
- На этом шаге нужно сделать так называемую обвязку. Бруски 50х50 прибиваем гвоздями к нашим стойкам горизонтально, сверху и снизу. Причём от земли необходимо отступить 10 – 15 см.
Каркас перед монтажом стен
Как сделать сарай из горбыля?
Умение сделать сарай из горбыля — дело не только интересное и поучительное, но ещё и полезное для тех, кто решил обзавестись участком за городом, что очень в наше время актуально. Разобравшись, как построить сарай из необрезной доски своими руками по пошаговой инструкции на даче, можно существенно сэкономить и упростить себе жизнь. Внимание придется уделить не только технологиям постройки, но и подбору материалов, инструментов.
Проектировать сарай или взять готовый проект?
При проектировании сарая можно обратиться за помощью к профессиональным архитекторам, либо воспользоваться уже существующими в интернете чертежами и проектами. Второй вариант наиболее популярный: с одной стороны можно взять уже готовый проект и просто реализовать его, с другой — можно позаимствовать различные решения из нескольких проектов сараев и таким образом собрать свой уникальный проект.
Ведь сарай строят не для того, что бы он был, а для решения конкретных задач. Если один из готовых чертежей сарая полностью удовлетворяет вашим потребностям, почему бы не взять его? Другое дело, если готовые проекты не подходят по тем или иным причинам. Тут-то и придется комбинировать и проектировать будущий сарай самостоятельно.
Особенности
Изготовить сарай из горбыля будет даже проще и легче, чем из необрезной доски. При этом достигается еще и приличная экономия средств. Однако надо понимать, что в чистом виде горбыльная постройка вряд ли станет образцом изящества. Ее можно, конечно, облагородить внешне — но тогда потребуются дополнительные работы и расходы. Сложнее всего выполнять первоначальную подготовку материала, при которой горбыль нужно старательно очистить от коры. Для такой работы понадобится специализированный инструмент.
Сарай из горбыля:
- не требует обычно обустройства фундамента;
- ставится на ровную твердую поверхность;
- практически всегда окрашивается (это нужно для продления срока службы).
Надежная дверь никогда не будет лишней
Обычно не возникает проблем при выборе двери для сарая. Все мы знаем, что хорошая дверь только на пользу любой постройке. Это избавит нас от многих проблем, а именно, от любителей «позаимствовать» чужой садовый инвентарь или дорогой инструмент.
Всегда как-то спокойней, когда стоит надежная дверь. Сделать её железной как раз предпочитают многие из нас. Подойдет и деревянная, но с ней со временем будет много проблем.
Дерево рассыхается, либо набухает от постоянной влаги и такую дверь весной, тяжело открыть. С железной дверью подобного никогда не происходит, даже если Ваша постройка покосилась от времени. Хорошая металлическая дверь выдержит все дополнительные нагрузки и справится с любыми капризами погоды.
Технология строительства
Построить на даче своими руками горбыльный сарай можно различными способами — выбор зависит от того, для чего он будет использоваться. Так, если для содержания птицы, тогда необходимо уделить внимание максимальному утеплению постройке, поддержанию сухости и отличной вентиляции. Особенно теплолюбивы и восприимчивы к пронизывающим сквознякам индюки. Сарай для них должен оснащаться отопительными приборами. Стены в этом случае рекомендуется оштукатурить. Еще один непременный момент — электрическое освещение.
Размер помещения для кроликов рассчитывается таким образом, чтобы в нём эти животные могли содержаться одновременно. Дополнительно предусматривается крупная клетка для отсадки взрослых особей.
Сарай для коз должен оснащаться дощатым полом с возможностью посыпать его опилками. Иногда заливают бетонный пол, но тогда опилок потребуется еще больше. Загон для коров и быков подразумевает установку перегородки, за которой – в меньшей части сарая – будут содержаться молодые телята.
Дополнительно необходимо произвести побелку всех внутренних поверхностей.
Общая пошаговая инструкция по сооружению обшитых горбылем сараев может быть следующей.
- Первичная сборка основного помещения сарая в виде каркаса.
- Установка собранной конструкции на деревянные бруски.
- Монтаж низовой обвязки.
- Настил досок пола.
- Обработка дерева антисептиком.
- Формирование гидроизоляции в случае строительства сарая для содержания птицы или животных.
- Крепление стоек с опорами.
- Подготовка балок для кровли.
- Подбивка досок на каркасную часть (методом нахлеста).
- Покрытие крыши рубероидом (его крепят рейками либо планками).
- Покрытие внутренней части стен металлической лентой (ее крепление по периметру повышает общую прочность конструкции).
- Монтаж двери и окна.
- Установка замка.
- Финишная отделка.
Важно определиться с размерами постройки. Для хранения лопат, граблей, ведер, тачки, шланга и других предметов, необходимых для работы на огороде, хватает «домика» 2,5х1,5 м. Крыша делается по односкатной схеме. Рекомендованная высота составляет около 2 м, еще 0,2 м оставляют под скат крыши. На ее поверхности рекомендуется положить уже не рубероид, а шифер. Обрешетку выполняют из досок.
Поскольку получается фактически простой ящик, можно отказаться от оснащения сарая окном. Впрочем, для красоты и удобства его оборудовать несложно.
В основание могут ставиться сваи под каждый угол. Использовать цементные или кирпичные столбики необязательно, так как лучше применить следующий материал:
- не слишком толстые бревна;
- металлопрокат;
- буронабивные сваи.
Крыша
Сарай является простым хозяйственным сооружением. Вполне допустимо использование односкатной крыши, которая легка в исполнении. Преимущества такого варианта:
- легкий монтаж в сочетании с надежностью;
- дешевизна, ведь нужно немного материала;
- легко делать гидроизоляцию.
Важно подобрать материал для крыши и угол ската. Последнее важно, ведь если снег будет скапливаться, то может сломать покрытие
Обычно скат делают не меньше 25–30°.
Нюансы монтажа зависят от материала.
Волновой и плоский шифер. Вариант дешевый, но служит не более 3 лет. Также шифер отличается хрупкостью, может пострадать от падения крупных веток. Панели довольно тяжелые (около 20 кг) и создают дополнительную нагрузку на каркас. Шифер стыкуется внахлест на 30–35 см. Монтаж начинается с нижнего яруса, а для фиксации применяются специальные гвозди.
Материалы и инструменты
Как уже говорилось, кровлю часто формируют из шифера. Вполне достаточно характеристик восьмиволновых листов. Их длину подбирают с учетом перекрытия пролета и формирования свеса, предупреждающего попадание дождя на стену. Для изготовления каркаса применяют деревянные бруски размером, например, 50х80 мм. На обрешетки идут доски толщиной 25 мм – с них тщательно вычищают кору.
Для наружной обшивки выбирают оцинкованный листовой прокат. Чуть дороже обойдутся необрезные доски. Если эстетические соображения не особо важны, доски можно покрывать даже отработанным машинным маслом. Еще для покрытия сараев можно применять ориентированную и цементно-стружечную плиту, фанерные и стекломагниевые листы, шпунтованные доски, вагонку. Для крепежа древесного материала подходят гвозди различной длины, саморезы и шурупы категории ПШ.
Из инструментов для работы нужны:
- лопаты (чтобы снимать землю или рыть ее);
- кувалда для забивания в грунт свай;
- молотки различного размера;
- стеклорез для подготовки стекла в размер;
- резиновый молоток;
- рулетка;
- топор плотницкий;
- пилы по дереву;
- уровень и отвесы;
- плотницкий карандаш или маркеры;
- тачка и носилки.
Будет значительно быстрее и легче выполнить строительство, если обзавестись для работы с деревянным материалом электрической пилой.
При старании и творческом подходе можно отстроить красивый сарай даже из горбыля. В крайнем случае его недолго покрыть снаружи приличным отделочным материалом.
О том, как сделать сарай из горбыля, показано в следующем видео.
Источник
Выбор места и планировка
Сарай можно скомпоновать с уже имеющимися постройками или же установить отдельно. Предварительно стоит рассчитать размер самого строения. Есть и определенные требования по выбору места для строительства.
Конечно, если сарай маленький, например 50х100 или 50х150 см, то о подборе участка можно особо не заботиться. А вот в случае хозблока, где будет жить птица или другая живность, есть правила. Следует соблюдать такие санитарные и градостроительные нормы:
- соседний участок должен находиться не ближе 4 метров;
- сарай можно устанавливать на расстоянии 15 метров от жилого дома;
- колодец с питьевой водой должен находиться не ближе 30–50 метров.
Место не должно подтапливаться во время выпадения осадков. Сарай можно расположить так, чтобы сооружение защищало от порывов ветра какой-то участок.
Как построить сарай: подробная поэтапная инструкция с фото
Какой бы ни был площади дом без сарая на участке не обойтись. Не все можно и нужно заносить в дом, даже если и место есть, а уже если нету, так тем более — хозпостройки необходимы. Это, кстати, может быть первым опытом в самостоятельном строительстве: построить сарай своими руками можно и без навыков. Главное, чтобы руки росли из нужного места.
При желании сарай можно сделать похожим на маленький домик
Конструктивные особенности хозяйственных построек на участке
Особое внимание нужно уделять материалу, из которого Вы будете возводить стены сарая. Это важно для того, как Вы будете использовать подсобное помещение. В сарае можно предусмотреть дополнительную комнату для незваных гостей, если в доме не окажется достаточного места. Поэтому особое внимание стоит уделить конструкции стен.
Прежде всего стены должны иметь надежную теплоизоляцию, если Вы хотите иногда переночевать среди старых, но дорогих Вам вещей, аккуратно разложенных на полках. Обычно теплоизоляции подсобных помещений не уделяют пристального внимания и делают их максимально простыми, так как основная задача спасти дачное имущество от дождя, снега и сильного ветра.
Но это только в том случае, если Вы не планируете холодным зимним вечером, допустим, что-то смастерить или отремонтировать собственными руками вместо того, чтобы лежать у телевизора. В этом случае стены Вашего сарая должны быть изначально утеплены для подобных случаев.
Можно предусмотреть и отопление. Это нужно сделать обязательно, если Вы планируете разместить в сарае мастерскую, а тем более, если планируете ночевать хотя бы одну холодную ночь в году. Если конструкция каркасная, то достаточно просто положить в стены дополнительный теплоизолятор.
Не экономьте, лишней такая предусмотрительность не будет. Если же выбор пал на строительство из деревянного массива, то этого будет вполне достаточно даже при слабом отоплении. В большинстве случаев, нужно лишь поддерживать положительную температуру в подобных помещениях. Бревна и брус имеют наиболее оптимальную теплоотдачу.
Из каких материалов строят
Если сарай расположен недалеко от дома и вас заботит его внешний вид, есть смысл использовать тот же материал материал что и при строительстве дома. Если не хочется тратить большую сумму на хоз-постройку, можно подобрать отделку так, что и издали и не отличить. В большинстве случаев это не очень сложно: технологий много и многие материалы очень точно воспроизводят внешний вид дорогостоящих отделочных материалов. Яркий пример тому — сайдинг. Он есть под бревно, брус, кирпич, камень с разной фактурой. Так что для постройки сарая не обязательно использовать дорогие материалы. Практичнее использовать недорогую технологию строительства, а потом обшить материалом с фактурой, похожей на отделку основного строения.
Как быстро и дешево построить сарай
Самый быстрый и одновременно недорогой вариант постройки сарая — по каркасной технологии. Каркас может быть деревянным или металлическим, его обшивают снаружи отделкой, ставят крышу и все, сарай готов. Если сарай планируется деревянный, его собирают из бруса и досок. Сарай металлический можно удобнее делать из профилированной трубы: квадратное сечение и варить и стыковать проще в разы. Есть еще специальный металлокаркас. Он собирается на саморезы, а вся конструкция заказывается и изготавливается на заводе. Такие дома считаются наиболее дешевыми, вряд ли сараи будут дорогими. Сборка и металлического и деревянного сарая занимает несколько дней: проверено не единожды.
На половину построенный сарай: пол и две длинные стены стоят, осталось установить короткие и сделать стропильную систему
Каркасная постройка получается легкая, потому фундамент под сарай нужен облегченный. В большинстве случаев достаточно столбиков, бетонных блоков, иногда устанавливают винтовые сваи или делают буронабивные. На более сложных грунтах и для тех, кто любит надежность, можно построить монолитный или сборный (из фундаментных блоков) ленточный фундамент мелкого заложения.
На армированном ленточном фундаменте можно ставить даже сарай из строительных блоков или кирпича. В этом случае даже на пучнистых грунтах постройка будет стоять нормально. Она если и будет двигаться, то вместе с фундаментом, так что риск возникновения трещин минимален.
Каркасный сарай можно построить и без фундамента. Тогда стойки (обработать от гниения) нужно будет заглубить на 60-80 см, забетонировать, и потом к ним крепить нижнюю обвязку, но которую будут опираться лаги пола. Но таким способом большое строение не построишь. Максимум — небольшую каморку и дровник рядом.
Еще один вариант. Он пригоден для грунтов, с которых хорошо уходит вода, а подпочвенные воды расположены глубоко. Тогда размечают участок, который больше планируемого сарая на 50 см в каждую сторону, снимают дерн и делают песчано-гравийную подсыпку. На утрамбованный щебень укладывают брус обвязки и крепят к ним лаги пола (обработанные антисеплитком для прямого контакта древесины с грунтом). Вот и все. Никаких сложностей.
Сарай без фундамента
Это далеко не лучший вариант: даже при низком уровне грунтовых вод и тщательной обработке древесины сарай простоит недолго. Если вас это устраивает, можно делать и так.
Фундамент для каркасного сарая
Все типы свайного или столбчатого фундамента предполагают расположение единичных опор по периметру: обязательно под углами строения и в местах примыкания перемычек (перегородок), если такие предусмотрены. Шаг установки опор зависит от размеров сарая и от того, какие лаги планируете использовать. Чем больше пролет, тем большего сечения требуются лаги.
Например, для ширины сарая 2 метра, можно поставить только два ряда столбиков и лаги при этом будут 150*50 мм (в крайнем случае 150*40 мм). Если ширина сарая 3 метра, то или ставить промежуточные опоры (столбики, сваи), или брать доску 150*70 мм. Посчитайте, что в вашем регионе дешевле выйдет, и выбирайте.
Вырытые котлованы под столбы
При ширине доски 100 мм пол под ногами ощутимо прогибается. Так что приходится шаг установки лаг делать около 30 см. Тогда прогиба нет совсем, или он незначительный (от веса зависит).
Быстрее всего сделать фундамент на готовых блоках: их можно купить или сделать самостоятельно. Под них копаются котлованы чуть больше по размерам чем блоки. На дно насыпают песок, трамбуют, затем гравий, его тоже трамбуют. Толщина подсыпки в утрамбованном виде — 20-30 см. На нее устанавливаются блоки, а уже на блоки монтируется нижняя обвязка.
После того как выложены блоки, на них крепится нижняя обвязка
Если речь про мелкозаглубленный ленточный фундамент, то траншею копают вглубь на 40-60 см относительно уровня грунта, ширина ленты порядка 25 см, а сама траншея должна быть шире как минимум на полметра или более: в нее устанавливается опалубка. Дно ровняют, трамбуют. На дно насыпают щебень и снова трамбуют.
Для опалубки использованы доски 150*50 мм, чтобы была возможность использовать их в дальнейшем, их оббили пергамином. После демонтажа опалубки (как бетон схватился) их разобрали и поставили как лаги пола
Из прутка 12-14 мм вяжут каркас. Четыре ребристых продольных прутка связывают при помощи рамок, изготовленных из гладкого прутка 6-8 мм. Размеры рамок должны быть такими, чтобы вся арматура находилась от краев ленты на расстоянии не менее 5 см. Например, если фундамент будет 40*25 см, то прутки связывают в конструкцию с прямоугольным сечением 30*15 см.
В опалубку устанавливают связанный каркас, который затем заливается бетоном марки не ниже М-200
Дизайн
В последнее время большинство городских жителей старается проводить свободное время на дачных участках. Поэтому дача должна быть не только комфортной для проживания, но и иметь соответствующий вид, подчеркивающий красоту природы. Это касается как жилого дома, так и всех прилегающих к нему хозяйственных построек. Если оригинально оформить сарай, то пыльная и забитая инструментами кладовая легко превратится в привлекательную «комнату».
Создавать дизайн хозблоков необходимо с их размещения на участке. Если площадь позволяет, то лучше всего строить просторные объекты с аналогичным стилем и отделкой, что и жилое здание.
Такое сочетание будет гармонично вписываться в ландшафт приусадебной территории. В том случае, когда дача небольшая, то можно установить аккуратные конструкции, декорируя их стены плетущимися растениями. Так они будут незаметны и оригинально сольются с другими насаждениями.
Цвет отделки сарая следует подбирать в зависимости от его размера и преобладающей палитры на участке. Для небольших дач лучше всего выбирать светлые оттенки, они помогут визуально расширить пространство. Кроме этого, на белом или пастельном фоне стен можно выполнить декоративную роспись, благодаря которой постройка приобретет сказочный вид. Чтобы получить оригинальный дизайн сарая, при его отделке желательно применять несколько видов строительных материалов. Например, необычно смотрятся сочетания дерева, кирпича и металла.
Деревянный каркасный сарай своими руками: пошагово с фото
Был построен каркасный сарай размером 6*3 метра. Крыша односкатная, крыта ондулином. Высота передней стены 3 метра, задней — 2,4 м. Эксплуатация показала, что при таком перепаде высот снега много не скапливается (Лен. область).
В качестве фундамента под сарай использованы стандартные блоки ФБС 600*300*200. Они уложены на песчано-гравийную подсыпку толщиной 25 см. Поверх блоков уложена отсечная гидроизоляция — слой рубероида, на битумную мастику. Сверху еще приклеен на ту же мастику слой «гидротекса». Такой пирог сделан потому что уровень грунтовых вод высокий, необходимо было гарантированно защитить постройку от сырости.
Начало строительства сарая. На фундамент уложена гидроизоляция, на нее — обвязка,, а к обвязке прикреплен брус
На гидроизоляцию укладывался брус сечением 150*150 мм (все пиломатериалы обработаны). Соединялся в полдерева, бился гвоздями — 100*4 мм. Для тех, кто незнаком с плотницким делом, можно соединить брусья встык, на места соединения прибить изнутри усиленные уголки, снаружи — монтажную пластину.
В данном варианте каркас к блокам ничем не крепился. В регионах с повышенными ветровыми нагрузками это неоправданно. Крепить можно при помощи шпилек: под них насквозь, через брус, в блок, сверлится отверстие такого же диаметра, (12-14 мм). В него загоняется шпилька, болт потом подтягивается ключом. Чтобы шляпка спряталась, под нее можно рассверлить отверстие.
Следующий шаг — крепление лаг пола. Установлены на ребро доски 150*60 мм. Крепятся к обвязке специальными скобами соответствующего размера. Крепились на гвозди 100*4 мм.
Лаги пола крепятся к обвязке такими скобами
Лаги выравнивались по верхнему краю обвязочного бруса. Все должно быть ровно, иначе пол будет стелить тяжело. Возможно, придется ровнять рубанком или переделывать.
Каркас собирался по технологии «платформа»: сначала настелили пол, а на него монтировали стены. Каркас стены или ее часть собираются на полу. В некоторых случаях сразу обшиваются с наружной стороны, если выбран для обшивки плитный материал. И уже в таком виде (с обшивкой или без) поднимаются, выставляются вертикально и закрепляются.
Есть вторая технология «баллун». По ней каркас монтируется постепенно: на обвязку или даже сразу на блоки монтируются угловые стойки каркаса. Они выставляются в уровень во всех плоскостях. Между ними натягивают канат, по которому затем выставляют остальные стойки. Их также прибивают по одной, скрепляя между собой укосами и временными поперечинами.
В данном случае была выбрана технология «платформа» и на лаги настелили ОСП 18 мм толщины. Вообще, пол можно сделать из досок, фанеры (влагостойкой), ОСП и т.д. Доска потребуется 20, фанера — 13-15 мм, но нужна влагостойкая (ОСБ влагостойкая по умолчанию).
Настелен пол в сарае
Далее началась сборка стен. Полностью сбивается каркас: нижняя обвязка, стойки, верхняя обвязка. В таком виде устанавливается ровно по краю бруса обвязки, выставляется, укрепляется страховочными распорками, упорами, укосами. Прибивается насквозь через настил пола к брусу обвязки. Гвозди брали 200*4 мм.
Собраны стены. Верхняя обвязка будет сразу и опорой для стропил
Для сборки каркаса использованы доски 100*50 мм, расстояние между стойками 600 мм, стропила установлены с таким же шагом. Стропильная система собиралась из 150*40 мм.
Оконные и дверные проемы усилены — прибиты по две доски, которые между собой сбиты гвоздями в шахматном порядке через 20 см. Нагрузка тут больше, потому требуется усиление. В одном из торцов предусмотрены ворота — для загрузки/выгрузки крупногабаритных вещей. Потому в этой стене (на фото видно) только угловые стойки и усиленные — для крепления створок.
Вид на торец, в котором будут широкие двустворчатые двери
Так как крыша односкатная, стропильная система простая: укладываются на ребро доски, которые выбраны под стропила. Их длина больше, так как необходим свес кровли. Он обычно 30-50 см с каждой стороны. В данном варианте при ширине сарая 3 метра, длина стропильных ног (с учетом уклона) составила 3840 мм.
Прибивались наискось гвоздями — по два с каждой стороны. Можно усилить установкой уголков: так выдержит даже значительные ветровые и снеговые нагрузки.
Обрешетка под ондулин
Далее — на крыше смонтирована обрешетка (100*25 мм). Шаг ее установки — по рекомендациям — 40 см. И настелен кровельный материал (гвозди покупались вместе с покрытием).
Стены снаружи зашили ОСП 9,5 мм толщиной.
Процесс наружной обшивки сарая
Установили двери, сделаны небольшие ступеньки.
Двери установлены старые, приведенные в порядок
Последними штрихами устанавливалась ветровая доска. Затем сарай был обшит вагонкой и покрашен краской в тон остальным постройкам на участке. Сарай своими руками на готовом фундаменте построен за два выходных дня. Обшивка вагонкой и покраска были значительно позже -почти через месяц.
Окончательный вариант сарая…красиво
Непривлекательный фундамент зашит нарезанным по размерам асбестовым листом. Красивый получился сарай.
Сарай с двускатной крышей из металлочерепицы
Этот сарай строился в одиночку. Постройка тоже каркасная: самый дешевый способ. В этом случае способ сборки — «баллун» — постепенное выставление стоек. Все начинается также: сначала сделали столбики под фундамент. Только на этот раз кирпичные.
Фундамент под сарай из кирпичных столбиков
Как видите, в угловые стойки вмонтированы шпильки. В обвязочном брусе сверлятся отверстия и он одевается на шпильки. Их можно делать не только в углах, но и на промежуточных столбах тоже: крепче будет держаться.
Этот сарай имеет небольшое крыльцо-веранду, потому на требуемом расстоянии установлен поперечный брус. А него будет опираться стенка. Под него предварительно сделаны и столбики.
Лаги крепились тоже на пластины
Лаги могут крепится еще и врубкой. Тогда в обвязочном брусе вырезается выемка по форме лаги. По глубине она не должна превышать 30% от толщины бруса, потому лага подрезается так, чтобы она встала на одном уровне с обвязкой. Это способ более трудоемкий.
Далее собирался каркас: угловые стойки 100*100 мм, промежуточный — 50*100 мм, верхняя обвязка и стропильная система собиралась из той же доски. Треугольники вверху усилены накладными металлическими пластинами. Пластины меньшего размера крепились и в местах стыковки верхнего бруса обвязки и стоек. Они соединялись встык без врубки, прибивались сверху и наискосок гвоздями. Пластины уменьшили вероятность складывания при боковых нагрузках.
Далее собиралась стропильная система — доска 150*50 мм, на нее — обрешетка под металлочерепицу. Была выбрана, так как таким же материалом крыта дача.
Собранная стропильная система с обрешеткой
Каркас обшивался листами ОСП — самый удобный размер для постройки. Впоследствии стены будут отделаны сайдингом под дерево.
Это почти готовый сарай с двускатной крышей. Осталась отделка стен
Обшивка, кстати, не обязательно должна быть из фанеры или ОСП. Можно вагонку или доску крепить сразу а стойки. Но тогда при сборке каркаса нужно ставить укосы: без жесткости плитного материала постройка будет хлипкой. Если укосы не ставить, качнуть можно рукой.
Такие раскосы придадут достаточную жесткость стенам каркасного сарая
После установки раскосов можно набивать доску, вагонку, блок-хаус, имитацию бруса, сайдинг — выбор за вами.
Каркасный сарай обшивается доской
Похожие каркасные сараи можно сделать из профильной трубы. Для обвязки и угловых стоек достаточно сечения 60*60 мм или 60*40 мм, для промежуточных и того меньше — 20*40 будет нормально. Только для крепления наружной обшивки нужно будет собирать и крепить обрешетку. Подробнее о строительстве сарая из труб и металлопрофиля читайте тут.
Для тех, кого волнует внешний вид строения, несколько идей о том, как сделать сарай красивым в видео-формате.
Проекты дачных сараев
Проектировать будущий сарай непросто без опыта за плечами. Однако такой подход позволит спроектировать сарай именно таким, каким вы его представляете. Не бойтесь отсутствия опыта — все когда-то начинали с этого. Хорошо, если у вас присутствует творческий подход и хорошее воображение, позволяющее представить в уме внешний вид сарая.
Имея представление о внешнем виде, уже проще будет подобрать материал для сарая. Ведь сарай может быть как капитальным (из кирпича, пеноблоков, древесины), так и сборно-разборным (из металлоконструкций или пластика). Если вы не планируете переносить сарай на другое место и строите его на долгие годы, стоит отдать предпочтение капитальным сооружениям.
Каркасный сарай
Менее затратный в финансовом плане вид сарая. Чтобы возвести данный вид хозяйственной постройки необходимо затратить минимальное количество времени. Да и особого опыта в строительной сфере для возведения каркасного сарая не требуется. Сарай своими руками это не так трудно, как кажется.
Прежде всего, необходимо сделать набросок будущего сарая. Исходя из созданной схемы, мы делаем разметку участка. Необходимо убрать на данной площади бытовой мусор и растительность. Затем делаем небольшую насыпь, толщина которой составляет 150 миллиметров. В качестве материала для насыпи выступает щебень и гравий.
Основанием сарая будут выступать опорные стойки каркаса. Под стойки выкапываются лунки, чья глубина составляет 800 миллиметров.
Снизу и сверху прибивается обвязка, сделанная из бруса.
Для производства крыши каркасного сарая крепят специальные балки перекрытия.
В качестве стены сарая используется вагонка или простые доски. Чтобы минимизировать присутствие щелей, необходимо прибивать доски внахлест.
Сарай из профильного листа
Чтобы сарай был не только дешевым, но радовал глаз, необходимо использовать профнастил. Приятным бонусом к относительной дешевизне строительного материала, станет его легкость. Но вот слабая жесткость потребует усиления хозяйственной постройки при помощи перемычек.
По своей основе металлический сарай не отличается кардинальным образом от каркасного сарая. Главным различием является используемый материал обшивки.
Чтобы прикрепить профнастил, необходимо использовать саморезы из цинка и прорезиненные шайбы. Также потребуется использовать электроножницы по металлу, чтобы четко подрезать листы.
Сарай из пеноблоков
Пеноблок в качестве строительного материала для сарая используется, когда требуется создать постройку для содержания домашних животных и птиц.
Данный вариант хозблока будет значительно дороже каркасного сарая, но и его долговечность никто не ставит под сомнения.
Интересное: Варианты заборов для частного дома: плюсы и минусы материалов
Кроме того, этот сарай можно будет эксплуатировать в зимний период времени без ущерба для общего состояния здоровья животных и птиц. Двери для сарая должны плотно закрываться и сохранять тепло в зимний период времени.
Обычно сарай из пеноблоков воспринимается как капитальная постройка. В связи с этим требуется максимально серьезно подойти к процессу создания проекта и ответу на вопрос: «Как построить сарай?». Необходимо рассчитать точное количество строительных материалов, которые потребуются в ходе стройки.
Сарай из кирпича
Технология строительства сарая из кирпича повторяет те же самые этапы, что и в предыдущих случаях. Делают фундамент. На нем выкладывается кирпичная кладка на цементный раствор. Каркас кровли деревянный, настил может быть любым. Такие сараи долговечные. Это надежные подсобки, внутри которых не заводятся мыши или насекомоподобные вредители, если заливать фундамент бетоном. Единственное что потребуется учесть, так это толщину стен. Чтобы сарай был сухой и теплый стены должны иметь ширину не менее 80 см.
Сарай из пластика
На рынке хозблоков и хозпостроек существуют уже готовые объекты, сделанные из прочного и легковесного пластика. Чаще всего такие конструкции требуется дополнять деревянной внутренней обшивкой – вагонкой, листами ОСП или фанерой. Между пластиком и обшивкой прокладывают утеплитель. Это позволит сохранить тепло и не даст сырости проникнуть в помещение.
Устанавливают пластиковые сараи без капитального фундамента. Достаточно выровнять площадку и просто на нем поставить маленький домик сарая. Сборка несложная. Производится из готовых модулей – на металлическом каркасе морозоустойчивый пластик. Все необходимые крепления входят в комплектацию. Это наилучшее решение для эстетики внешнего вида построек на участке. Материал практичен. Не требует особого ухода.
Сарай из необрезной доски (горбыля)
Дачная подсобка из горбыля также строится по методу каркасного возведения. Только каркас будет иметь другую конструкцию, более упрощенную. Зашивается он необрезной доской. Предварительно доску следует обработать антисептиками. Небольшое неудобство таких сараев заключается в регулярном его окрашивании или обработке иными защитными материалами.
Горбыль сначала очищают от коры и зашкуривают от волокон. Затем его также обрабатывают антисептическим материалом, чтобы не образовывалось плесени и грибка. Такие конструкции можно устанавливать прямо на ровную, твердую утрамбованную площадку, без обустройства фундамента, но низовую обвязку, бруски. Далее создается каркас и зашивается горбылем. Готовый объект обязательно окрашивают фасадной краской.
Готовый контейнерный хозблок
Металлические контейнерные хозблоки делают из новых или отслуживших бытовок. Их необязательно ставить на фундамент. Такие конструкции имеют прямоугольную форму, двухскатную крышу, узкие окошки практически под самой крышей и двустворчатые двери.
Для утепления контейнера используют минеральную вату, базальтовое рулонное волокно, мягкие плиты. Его ьпрокладывают по внутренней поверхности стальных стен. Затем все зашивают листами ОСБ, ОСП, гипсокартоном или фанерой. Листы крепят на профили из бруса.
Видео о строительстве сараев из дерева
Сарай получился красивый, но недешевый. Зато приличный по размерам, крепкий и по внешнему виду не отличается от дома — вписывается в композицию. Все показано/расписано подробно, есть одно нарушение: гидроизоляция под металлочерепицу уложена вертикально. Даже при хорошем склеивании полос рано или поздно вода сделает себе дорожку. В остальном — все грамотно.
В этом случае сарай своими руками построен на самом дешевом, наверное, фундаменте: в старые покрышки залит бетон. На этих «столбиках» и стоит каркас. Естественно, выставлять их нужно на ровную надежную поверхность и сами они должны быть в одном уровне. По прочности такон основание не уступит лучшим бетонным блокам, а может еще и превзойдет их. Выступающие из-под строения покрышки, можно закрыть, сделав ступеньку и расставив впоследствии на ней цветы или используя под другие нужды. Еще практичней получится.
Еще одно видео с пошаговой иллюстрацией строительства каркасного сарая из бруса.
Дополнительные возможности
Сам по себе сарай – удобная и полезная постройка, но его можно использовать не только для хранения инвентаря и садовых запасов.
Можно совместить это строение с дровяником. Для этого часть здания обшивается не сплошной облицовкой, а с зазорами – для лучшей вентиляции дров. Крыша и фундамент остаются такими же.
Можно расположить в общем или отдельно построенном сарае насосное оборудование для скважины.
Выделить часть помещения или полностью использовать его под птичник.



















