Посетив мебельный магазин, ознакомившись с ценами и видом продукции, очень часто многие решают сделать мебель самостоятельно. Для этого, необходимо, прежде всего, сделать чертёж кухни своими руками. Качественный мебельный гарнитур стоит очень дорого. Причём его размеры не всегда соответствуют имеющейся конфигурации и дизайн угловой кухни.
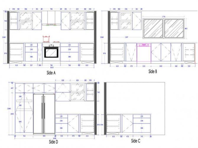
Готовый чертеж угловой кухни с холодильником
Безусловно, можно сделать заказ мебели, на фабрике, но тогда стоимость будет ещё выше. Поэтому лучшим решением такой проблемы будет самостоятельное изготовление кухонной мебели.
Такой вариант имеет несколько преимуществ:
- схема помещения будет сделана согласно размерам кухни;
- максимальное использование площади;
- оригинальный неповторимый дизайн;
- экономия денежных средств.
Самостоятельное изготовление
Тем. кто с компьютером на «вы», остается сделать чертеж своими руками. Потребуется самый элементарный набор инструментов: карандаш, линейка и лист ватмана.
Снятие мерок
Этот этап необходим как для самостоятельного, так и виртуального эскиза. При его изготовлении необходимо придерживаться определенного масштаба. Предпочтение стоит отдать варианту 1:10.
- Измерить основные параметры помещения, учитывать не стандартные размеры.
- Начертить периметр кухни. Указать точные размеры стен и простенков, причем делать это надо в разных точках помещения: у самого потолка и на полу. Возможные расхождения отмечать на эскизе. Это поможет в дальнейшем избежать проблем с размещением и перекосами. За основу берутся меньшие размеры, учитывайте толщину столешницы из ДСП или другого материала.
- Обязательно отмечаются места расположения инженерных коммуникаций: газ, канализация, электричество. Указать размещение розеток и вентиляционных отверстий.
- Обозначить дверной и оконный проемы.
Оптимальная единица измерения – 1 мм.
Без каких размеров не обойтись:
- Длина и ширина помещения.
- Расстояние от пола до потолка – высота гарнитура, от пола до подоконника, от пола до вентиляционного отверстия, между стенами, от угла до окна, между стеной и различными трубами (газовой, водопроводной и т.п.).
Какие замеры понадобятся
Для создания схемы необходимо рулеткой измерить длину и высоту комнаты, расстояние окна до угла и пола. Стандартная глубина кухонных шкафчиков составляет 50 см, высота 85 см.
Ширина зависит от индивидуальных параметров комнаты и дизайна гарнитура. Если комната имеет нестандартные размеры, необходимо сделать дополнительные замеры и сделать расчеты.
Размещение бытовой техники
Один из важных этапов при создании эскиза – грамотное размещение крупной бытовой техники: плиты и духовки, холодильника, посудомоечной, стиральной машин, выбрать размеры мойки.
Необходимо соблюдать ряд непреложных правил. Холодильник не должен располагаться рядом с плитой, иначе он может выйти из строя раньше отведенного ему срока.
Еще одно нежелательное соседство – плита и мойка. Они должны располагаться не ближе полуметра друг от друга.
Брызги воды могут не только негативно сказаться на состоянии плиты, но и угодить в розетку, поэтому стоит рассмотреть вариант с выдвижными розетками для столешницы. А это уже грозит коротким замыканием и выходом из строя дорогостоящей кухонной техники.
Агрегаты для стирки и мытья посуды логично разместить в непосредственной близости от труб водоснабжения. Как выбрать мойку из искусственного камня можно узнать в данном материале.
Идеи дизайна
Изготовление мебели своими руками позволяет обустроить внутреннее пространство кухни на ваш изысканный вкус. Самостоятельная работа подразумевает творческий уклон. Когда все сделано, у вас возникает чувство эстетического превосходства.
При монтаже своими руками можно выделить несколько подходящих стилевых направлений в дизайне. Это старорусский стиль, а также искусственное старение древесины. К этим двум направлениям отлично подходят нотки небрежности в изготовлении, недочеты и небольшие отступления от идеала. Но это касается только мебели из натуральной древесины.

Когда кухонный гарнитур изготовлен из ДСП иди МДФ, стиль интерьера задается раннее выбранным цветом и оттенком материала. Важно проявить должное рвение и грамотно сочетать существующий дизайн квартиры.
Посмотрите подборку фотографий к этой статье. Вы найдете множество подходящих идей для оформления своего кухонного пространства.

Обязательно попробуйте в своей жизни собрать свою собственную, авторскую мебель. Когда делаешь своими руками, получается воплотить самые сокровенные желания. Творите вместе с нами!
Смотрите такжеДизайн и интерьеры кухни с эркером П44Т
Как расположить мебель
Прежде всего необходимо определиться с размещением в пространстве кухонной мебели: в одну или две линии, в виде буквы П или Г, или же будет взят за основу полуостровной или островной вариант. Если имеется недостаток свободного пространства, без проблем можно подобрать маленький угловой гарнитур, но нужно точно подобрать размеры шкафов.
Угловые кухни маленького размера позволяют максимально сэкономить пространство.
Мнение эксперта
Соловьев Павел Викторович
Дизайнер с многолетним опытом и стажем.
Площадь кухни позволяет поставить в ней стол, табуретки или стулья? Следует отвести для этого пространство с учетом возможности комфортного отодвигания стульев.
Далее необходимо определиться с количеством шкафов и местом их размещения. Только после этого можно приступать к созданию отдельных вариантов проектов кухни.
В данном случае опять же очень разумно прибегнуть к помощи компьютерной программы. Она позволит с точностью до микрона рассчитать не только параметры фасадов, но и оптимизировать внутреннее пространство.
При этом будут учтены все нюансы – расположение отверстий, фурнитуры, выдвижные элементы. Все должно открываться без усилий, чтобы обеспечить доступ к внутренним поверхностям напольных и навесных шкафов, а также к светильникам для шкафов.
Составление плана
Перед тем, как нарисовать «чистовой эскиз», нужно набросать примерный схематичный проект. Уже на нем попробовать все возможные варианты установки мебели и техники. После того, как будет выбрана оптимальная расстановка, можно переносить ее на чистовик, с учетом всех параметров. При составлении плана, соблюдайте размеры кухонных элементов.
- Отразите контур помещения, с окнами и дверными проемами, уменьшив масштаб.
- Соответственно размерам, укажите на плане основные коммуникации (газ, вода, канализация, вентиляция). Именно от этих точек начнется расчет кухонного гарнитура. Их перенос трудно осуществить, а иногда и вовсе – не представляется возможным.
Газовое оборудование должно находиться в непосредственной близи (до 50 см) от газопровода. Сразу отмечаем вытяжку. То же самое касается мокрых зон. Расположение мойки должно быль в близи от канализационного рукава. Справа от мойки устанавливается посудомоечная или стиральная машина.
- Между горячей и мокрой зонами, должна находиться рабочая поверхность.
- Далее, отражаем расположение холодильника – в отдалении от нагревательных элементов.
- После того, как расставлены основные элементы кухни, наносим розетки.
- Далее, отображаем все элементы, имеющие выступы: водонагревательную колонку, подоконник, вентиляционный короб.
- После этого, подбирается оптимальная конфигурация напольных секций и их наполнение.
- Таким же образом подбирают верхние модули.
Когда план будет готов, можно приступать к составлению эскиза.
Секции (модули)
Кухонный гарнитур – это конструкция, состоящая из секций:
- секции верхнего ряда;
- секции нижнего ряда;
- отдельные модули.
Глубина нижней секции соответствует размеру столешницы. Как правило, она равна 600 мм, соответственно, глубина шкафов – на 50 мм меньше. На ширину секции влияет выбор фурнитуры. Как выбрать столешницу для кухни можно узнать в данной статье.
Вытяжка
От размеров подвесной вытяжки, располагаемой над плитой или под полками зависит ширина верхней секции. Минимальное расстояние от секции вытяжки до электроплиты – 700 мм, до газовой плиты – на 100 мм больше.
Расчет размеров кухонного шкафчика (глубина, ширина, высота)
Основной ориентир высоты шкафчиков – высота оконного проема.
Просмотрите видео инструкцию как сделать кухню своими руками:
Как правильно производить замеры
Одним из основных параметров, учитываемых при конструировании кухонных шкафов, является минимальный размер по длине. Увеличение этого параметра может привести к тому, что готовое изделие может не уместиться на предназначенном для него месте.
Лучше всего отнять дополнительно еще 10 мм от полученного минимального размера. Это поможет избежать неприятных несостыковок.
Необходимо проверить соответствие прямых углов положенным 90 градусам. При выявлении больших расхождений в проекте этот нюанс должен быть обязательно учтен. Исправить ситуацию можно, например, используя планку-зашивку.
При проведении замеров необходимо учитывать толщину панелей и дверок на шкафах. Неровность стен может стать помехой при навеске шкафов. В этом случае выходом станет увеличение зазора между ящиками.
Раскрой материалов по проекту
Данную операцию можно, конечно, произвести самостоятельно, соблюдая предельную точность. Но это достаточно большой риск.
Даже при соблюдении всех необходимых правил и мер предосторожности что-то может пойти не так, и мебель окажется непригодной для использования. Поэтому раскрой плит лучше заказать в специализированном мебельном цехе за вполне вменяемые деньги. Так все же будет вернее и не приведет к ненужным тратам.
Вам понадобится наглядный пример как сделать кухню:
Как собрать угловой или стандартный шкаф
Сделан эскиз, выбран подходящий материал для шкафов, определено расположение бытовой техники. Теперь необходимо собрать комплект.
Сначала горячим утюгом необходимо окромить все детали, обрезав потом ненужное ножницами и обработав наждачной бумагой.
Крепеж
На фасадах отмечаются места для крепежа и проделываются отверстия. Все детали должны быть промаркированы.
В процессе сборки можно сразу после соединения горизонтальных и вертикальных поверхностей вставить в шкаф все ящики и полки. Монтаж фасадов осуществляется в самом конце.
При этом конструкция должна лежать на полу. Дверцы крепят в открытом состоянии.
Монтаж нижней секции регулируется по уровню, чтобы получить безукоризненную горизонтальную поверхность. Столешница крепится к нижней секции саморезами. После этого проделывают отверстия для мойки и плиты.
Верхнюю секцию навешиваем не ниже 600 мм от уровня столешницы. На стене необходимо прикрепить монтажную шину. При навешивании необходимо выровнять шкафы по всем направлениям.
Как закончить кухню, наглядная инструкция:
Декорирование фасада шкафа на кухне
Для придания привлекательного внешнего облика готовому кухонному гарнитуру можно использовать такие несложные приемы, как покраска, лакирование, роспись или замена фасадов . Кроме того, отдельные элементы гарнитура могут быть отделаны специальной пленкой и тканью. Все необходимые расходные материалы в большом количестве присутствуют на прилавках мебельных и художественных магазинов.
Итак, кухня мечты это вполне реально и совершенно недорого.
Всего лишь несколько советов и толика усердия и на вашей кухне, интересный и созданный вами эксклюзивный гарнитур. В других наших статьях вы можете ознакомится с маленькими кухонными уголками.
Любой кухонный гарнитур, как отдельно стоящий, так и встроенный состоит из набора секций. В большинстве случаев, этот набор не так широк и поддаётся стандартизации.
Подобная стандартизация необходима для организации серийного производства недорогих кухонных гарнитуров (пример: фабрика мебели «Скиф»), потребителями которых являются довольно широкие слои населения. Модели и дизайн кухонных гарнитуров, которые можно составить из стандартных элементов, весьма разнообразен и вполне можно спроектировать оригинальную и красивую кухню мало чем отличающуюся от дорогих аналогов.
На основе стандартных кухонных модулей существует список размеров мебельных фасадов, который многие изготовители фасадов взяли в основу своего производства (см. ниже).
Здесь представлены чертежи и схемы с разметкой сборочных отверстий типовых нижних кухонных шкафчиков* (баз). Все схемы понятны и предназначены для мастеров, желающих сделать кухонный гарнитур своими руками. Для облегчения чтения чертежей, прошу обратить внимание на перечень принятых условных обозначений.
* Чертежи типовых верхних кухонных шкафчиков смотрите на этой странице
.
Условные обозначения на чертежах:
| Обозначение | Пояснение | 
| Отверстие под конфирмат в плоскости детали. Показано со стороны раззенковки (лицевой). | |
| Отверстие под конфирмат в торце детали. По центру ширины торца. | |
| Отверстие под полкодержатель. Показано с внутренней (оборотной) стороны детали. Т.е. такое отверстие сверлится по указанным размерам, но с оборотной стороны детали, указанной на чертеже. | |
| Несквозное отверстие под шкант в плоскости детали. | |
| Отверстие под шкант в торце детали. | 
Все размеры указаны из расчета на ДСП толщиной 16 мм. Для просмотра подробных чертежей, схем и размеров кухонных секций (шкафчиков), ссылка напротив эскиза.
Габариты кухонной секции (шкафчика).
Типовые размеры кухонных фасадов. Все размеры указаны с учётом стандартных зазоров!
Мнение эксперта
Соловьев Павел Викторович
Дизайнер с многолетним опытом и стажем.
Цветом обозначены типоразмеры фасадов в таблице и на схеме. Буква В
— означает возможность изготовления фасада данного размера в остекленном варианте (витрина). Стандартные зазоры между фасадами: 2 мм. на сторону.
В последующих частях будут размещены чертежи верхних кухонных секций* и варианты дизайна кухонных гарнитуров, составленных из этих модулей.
Копирование материалов статьи возможно только с активной обратной индексируемой ссылкой.
Не имея наглядного эскиза в масштабе сложно представить, гарнитур каких габаритов можно себе позволить, вместится ли обеденная зона на 2-8 человек. Заранее подготовленные проекты кухонь с размерами в этом плане значительно упрощают задачу: помогают схематично расставить мебель и сделать процесс проектирования более последовательным.
Начало работы
Пожалуй, это самый сложный вопрос. Многие просто не представляют, как начать такую работу.
Прежде всего, нужно составить схему помещения, в которой учесть все нюансы кухни. Необходимо продумать расположение бытовой техники. Куда поставить плиту, в каком месте будет установлен холодильник? Как лучше расположить стиральную машину?
На схеме нужно указать местоположение обеденного стола. При проектировании необходимо будет решить вопрос со столешницей. Возможно, подоконник станет её продолжением. Для угловой кухни нужно будет на схеме показать рабочую зону.
Варинты планировки и чертеж кухни
После того как все данные вопросы полностью решены, необходимо сделать планировку кухни. Желательно, чтобы были очень подробно указаны все размеры и расстановка будущей мебели.
Сегодня существует очень много компьютерных программ для планировки кухни, в которых можно получить зрительный, объёмный макет будущей угловой кухни. Естественно, что во время создания схемы разрабатывается и проект дизайна будущей угловой кухни.
Вариант чертежа с размерами угловой кухни
Только после этого разрабатывается чертёж мебельного гарнитура.
Прямая кухня своими руками: составляем дизайн-проект и чертеж
Мнение эксперта
Соловьев Павел Викторович
Дизайнер с многолетним опытом и стажем.
Рассмотрим дизайн-проект прямой кухни длиной 3 метра. Обычно при прямолинейной расстановке кухонной мебели требуется предусмотреть зону установки мойки, плиты и холодильника – трех ключевых элементов кухни.
Пусть в нашем случае холодильник не входит, нужна прямая кухня своими руками ровно 3 метра. Тогда дизайн-проект прямой кухни своими руками может выглядеть примерно так.
Распределим полученную длину по модулям, исходя из следующих соображений:
- Для круглой мойки достаточно выделить тумбу длиной 600мм.
- Плита (духовой шкаф и варочная панель) встраивается в стол-тумбу шириной 600мм.
- Наиболее красиво и гармонично смотрятся шкафы пропорциональных размеров и с одинаковой шириной створок.
Итого для нашей прямой кухни своими руками на длину 2960мм модули распределятся следующим образом: 600+600+600+580+580.
Заметим, что это не единственно возможный вариант. В своем дизайн-проекте вы можете расширить рабочую поверхность между мойкой и плитой до 800мм, предусмотреть врезку более объемной чаши мойки со сливной доски. Тогда распределение по шкафам будет уже другим. Соответственно изменится и общий дизайн-проект прямого гарнитура.
Разнообразие эскизов
Чертеж кухни длиной 4 метра ничем не отличается от типичного построения. Такой способ расстановки наиболее распространен, подходит для любых помещений, выделяется лаконичностью, наличием свободного пространства.
- Линейная планировка имеет один ряд и размещается вдоль одной из стен. Двухрядный, четырехметровый эскиз подойдет для больших квартир, вытянутых помещений.
- Отличается большой рабочей зоной, многофункциональностью, вместительностью, позволяет создавать разнообразные интерьерные решения.
- Среди плюсов можно отметить экономию пространства, удешевление стоимости гарнитура, так как угловые, фигурные конструкции всегда будут стоить дороже, имеют сложную фурнитуру.
- Среди недостатков выделяют необходимость много передвигаться вдоль ряда, отсутствия рабочего треугольника.
- При проектировании отталкиваются от расположения мойки. Обязательно между устройствами размещают рабочую поверхность столешниц на 40-80 см.
- Визуально разбить помещение можно с помощью острова, на который можно перенести плиту или раковину.
Грамотно составленный чертеж поможет без усилий обустроить кухню с первого раза без переделок и доработок. Работать по плану намного прощу и легче.
Как правильно рассчитать деталировку нижних модулей прямой кухни
Внутренняя конструкция столов-тумб проектируется следующим образом.
Боковины кухонных столов-тумб упираются в донышки и ставятся на регулируемые ножки. Сверху боковины стянуты планками, к которым в свою очередь крепится столешница. Внутри кухонных столов-тумб могут быть полки и ящики. Особенной, специфичной конструкцией наделен стол-мойка и тумба для встраиваемой духовки.
Как сделать кухонный стол-мойку своими руками
Кухонный стол-тумба под мойку делается без задней стенки. Планки для крепления столешницы разворачиваются ребром, чтобы не мешать врезке мойки. Задняя планка выполняет роль ребра жесткости (поскольку задней стенки ДВП в мойке нет) и опускается несколько ниже.
Детали стола-мойки можно легко рассчитать самостоятельно, зная толщину ДСП – 16мм.
- Дно 600х500 – 1шт.
- Боковины 704х500 – 2шт.
- Планки – 568х80 – 2шт.
Видимые торцы деталей закатываются кромкой. Для стола-мойки деталь «дно» закатывается кромкой в круговую, а боковины и планки – по двум длинным сторонам.
Как сделать кухонный стол-тумбу с полкой своими руками
Следующий за мойкой кухонный стол-тумба с полками рассчитывается совершенно аналогичным образом.
Полки обычно заглубляют относительно боковин на 10-20мм. Заднюю стенку набивают внахлест по периметру задней части.
Расчет деталей ДСП стола-тумбы с полками будет выглядеть следующим образом:
- Дно 600х500 – 1шт.
- Боковины 704х500 – 2шт.
- Планки – 568х80 – 2шт.
- Полка – 568х480 – 2шт.
Задник ДВП немного уменьшают по периметру, чтобы его края не выходили за пределы стола-тумбы. То есть при габарите 720х600 размер задника будет 718х598.
Как сделать кухонный стол-тумбу под встроенный духовой шкаф
О нюансах проектирования стола-тумбы под духовку можно прочитать здесь. В статье рассмотрены все моменты по расчетам деталировки на этот модуль кухни.
В нашем случае детали ДСП для изготовления стола-тумбы под духовку можно записать так:
- Дно 600х500 – 1шт.
- Боковины 704х500 – 2шт.
- Полка – 568х500 – 1шт.
- Бок ящика – 450х60 – 2шт.
- Лоб ящика – 510х60 – 2шт.
Единственный нюанс – верхнюю планку можно не ставить, поскольку она может помешать врезке варочной поверхности над этим модулем.
Как сделать кухонный стол-тумбу с выдвижными ящиками своими руками
Детали короба кухонного стола-тумбы рассчитываются совершенно аналогичным образом. А вот для расчета деталировки выдвижных ящиков нужно определиться с выбором направляющих – самих выдвижных механизмов.
- Телескопические направляющие. Стандартный выдвижной ящик с коробом из ДСП (боковины и лоб), дно ДВП.
- Направляющие метабоксы. Дно и задник выдвижного ящика из ДСП, а боковины – металлические, являются элементом выдвижения.
- Тандембоксы. Конструкция выдвижного ящика аналогична метабоксу, отличие – во внешнем оформлении металлических боковин, внутри которых «спрятаны» дополнительные механизмы плавного закрывания, доводки, открытия от нажатия и т.д.
Предположим, что выбраны телескопические направляющие для выдвижных ящиков (вполне приемлемый вариант для бюджетного гарнитура и такой ширины модуля). При выборе других выдвижных механизмов для выкатных ящиков в расчете деталей ДСП ориентируйтесь на инструкцию производителя.
К любой мебельной фурнитуре такого плана она прилагается, с указанием всех необходимых размеров для встраивания.
При таком распределении внутреннюю высоту ящика можно сделать 100мм. При этом для более надежного крепления высокого фасада нижнего ящика необходимо предусмотреть такую деталь.
Записываем деталировку, как сделать кухонный стол-тумбу с ящиками из ДСП своими руками:
- Дно 580х500 – 1шт.
- Боковины 704х500 – 2шт.
- Планки – 548х80 – 2шт.
- Бок ящика – 450х100 – 8шт.
- Лоб ящика – 490х100 – 7шт.
- Лоб ниж ящика – 490х270 – 1шт.
Как сделать комбинированный кухонный стол-тумбу с ящиками и полками
Рассмотрим нестандартный случай, когда кухонный стол-тумба имеет два верхних ящика и две распашных створки под ними. Такая конструкция используется редко, поскольку деление пространства на два выдвижных маленьких ящичка довольно нерационально – слишком много «сантиметров» теряется в зазорах для движения механизма.
Помимо зазоров добавляется и толщина центральной перегородки. По высоте ее делают примерно равной высоте фасадов выдвижных ящиков и крепят к верхним планкам. В нашем случае высота перегородки равна 140мм.
Ширина ниш для встройки ящиков равна (580-16х3)=266мм, значит, ширина передней детали (лба) выдвижного ящика равна (266+32)-90=208мм. Это, пожалуй, единственный нюанс в расчете такого кухонного модуля.
Остальные детали кухни рассчитываются по тому же принципу:
- Дно 580х500 – 1шт.
- Боковины 704х500 – 2шт.
- Планки – 548х80 – 2шт.
- Перегородка – 140х500 – 1шт.
- Бок ящика – 450х100 – 4шт.
- Лоб ящика – 208х100 – 4шт.
- Полка – 548х480 – 1шт.
Также к нижнему ряду кухни добавляется цоколь. Длина 2960мм не укладывается в формат стандартного листа ДСП, поэтому делится на две части произвольно. Можно выделить отдельный цоколь на мойку – поскольку теоретически сниматься эта часть будет чаще – при необходимости каких-то сантехнических работ.
- Цоколь мойки 600х100 – 1шт.
- Цоколь кухни 2360х100 – 1шт.
Чертеж на бумаге
От грамотного чертежа зависит многое в работе. Практически, это самый важный этап. Сохраняйте четкую последовательность при изображении гарнитура на листе бумаги.
Вот такой процесс работы.
1. Перенесите размеры помещения на лист бумаги. Сразу сделайте несколько копий, чтобы было с чем сравнивать и оперировать. 2. Нанесите инженерные сети, выступающие трубы водопровода и канализации, а также радиаторы отопления и подоконник. 3. Обозначьте основные размеры. 4. Начните компоновать пространство, добавляя те или иные элементы меблировки. 5. После изображения нескольких черновых вариантов, перенесите финальный на чистый лист бумаги.
Эти действия можно осуществлять на компьютере. При наличии навыков работе в «Автокаде», у вас легко получится изобразить схему в заданном масштабе. Это исключит возможные просчеты. Кроме «Автокада» подойдет такое программное обеспечение, как «Архикад», «Корел Дроу» и другие графические редакторы.
При наличии навыков работе в «Автокаде», у вас легко получится изобразить схему в заданном масштабе.
Особое внимание уделите чертежам каждого отдельного мебельного элемента внутреннего убранства. Учтите, вам придется вычерчивать каждую тумбу, полку, шкаф и подставку на отдельном листе бумаги. Делается это в трех проекциях:
- фронтальная;
- горизонтальная;
- вид сверху.
Такой способ позволяет максимально наглядно представить будущую тумбочку или шкаф. Кроме того, обязательно чертите внутренние размеры функционального пространства тумбы, его каркас. Дело в том, что изготовление будет начинаться именно с каркасной конструкции, а без ее размеров у вас не получится правильно сделать выкройки. Обязательно оставляйте припуски в 1-3 мм. Это нужно для подгонки деталей, так как в процессе сборки может понадобиться удлинить конструкцию или подогнать к имеющемуся недостатку.
Обязательно оставляйте припуски в 1-3 мм. Это нужно для подгонки деталей, так как в процессе сборки может понадобиться удлинить конструкцию или подогнать к имеющемуся недостатку.
Разборчиво подписывайте все цифровые обозначения на схеме. Не зря же существуют специальные ГОСТы, по которым в учебных заведениях требуют оформлять чертеж. Если вдруг вы после составления схемы и неправильного ее прочтения возьмете в голову другую величину той или иной детали, все работа может пойти насмарку.
Разборчиво подписывайте все цифровые обозначения на схеме
Смотрите такжеДизайн кухни 6 кв. метров: выбор стиля, мебели, освещения.
Как рассчитать кухонный навесной шкаф своими руками
Сложность в расчетах обычно вызывают угловые элементы. Но, поскольку в нашем варианте проектируется и рассчитывается прямая кухня своими руками, все предельно просто и понятно.
Глубина кухонных навесных шкафов обычно берется 300мм. Есть два принципиально отличающихся по конструкции навесных кухонных модуля:
- Шкаф с сушкой. В него встраивается двухуровневая решетка для посуды. Поэтому его размеры строго регламентированы размерами самой сушки – ширина шкафа должна быть «круглой», 500, 600, 700, 800 или 900мм.
Остальные шкафы прямой кухни своими руками имеют вполне стандартную конструкцию и рассчитываются просто. Рассмотрим на примере чертежа кухонного навесного шкафа с двумя полками.
- Дно 568х300 – 2шт.
- Боковины 800х300 – 2шт.
- Полки– 568х280 – 2шт.
Задняя стенка ДВП может вставляться в паз или набиваться внахлест. Второй способ легче, если вам нужно сделать прямую кухню своими руками – рекомендуем остановиться именно на нем.
Задняя стенка в паз обычно выбирается, если планируется устанавливать регулируемые навесы. Но для навески прямой кухни это излишне, достаточно простых «ушек» для навески верхних кухонных шкафов с последующей стяжкой между собой в единую, монолитную конструкцию.
Эскизы и 3D макеты в компьютерной программе ↑
Чтобы существенно ускорить и облегчить работу, попробуйте нарисовать эскиз кухни онлайн с помощью соответствующей программы. Подобных продуктов существует достаточно много – SweetHome 3D, Pro100, ModernlineFurniture, Stolplit, KitchenDraw. Почти все они предназначены для непрофессионалов, поэтому вам не составит труда в них разобраться.
Объемная модель угловой кухни
Перед тем как спроектировать кухню на компьютере в одной из этих программ, вам необходимо ее скачать или зарегистрироваться на сайте разработчика, чтобы поработать в онлайн-версии. Открыв утилиту, нужно следовать пошаговым указаниям, которые выглядят примерно так:
- Открыть раздел «Помещение» (он может называться по-другому) и указать реальные габариты своей кухни, при этом нужно учитыватьединицы измерения, принятые данным софтом.
- В разделе «Двери и окна» и «Коммуникации» выбрать необходимые элементы и компьютерной мышкой перетащить их на изображение комнаты, попутно изменяя геометрические параметры.
- Нажать иконку «Каталог» и подобрать варианты мебели, внося их габариты в соответствующие графы и поворачивая вокруг оси в нужном направлении.
- Определить стиль, материал, фактуру и цвет фасадов, скорректировать направление открывания дверец.
- Сохранить проект трехмерной модели, активировав иконку с диском или нажав горячие клавиши Ctrl+S.
Виртуальная проверка эргономики кухни
После этих манипуляций можно убедиться, насколько проще на компьютере нарисовать проект кухни своими руками – чертежи, размеры, фото программа создает сама. Таким образом, у вас появляется возможность практически мгновенно оценить реализуемость своих идей, предметно проконсультироваться по их поводу с профессионалом и почти бесплатно получить индивидуальную проработку кухонного интерьера.
Как рассчитать размеры фасадов для прямой кухни своими руками
По известным габаритам кухонных столов-тумб и навесных шкафов легко рассчитать размеры фасадов. К этим расчетам следует подойти максимально внимательно, поскольку это, пожалуй, самая затратная и видимая часть. Любые огрехи и «пролеты» в размерах никак не скроешь, придется перезаказывать дверцы заново.
Принцип расчета фасадов кухни прост: короба кухни должны полностью закрываться дверцей, но при этом для возможности движения, без шарканья дверцы друг об друга при открывании и закрывании, необходимо предусмотреть технологический зазор. Как правило, он составляет 2мм с каждой стороны.
То есть при высоте кухонных модулей 720мм, высота фасадов будет 716мм.
Мнение эксперта
Соловьев Павел Викторович
Дизайнер с многолетним опытом и стажем.
При ширине модуля в 600мм и закрывании двумя дверцами, ширина фасадов за минусом боковых зазоров равна 600/2-2=298мм. И минус центральный зазор между двумя створками по 1мм на каждую сторону, получается 297мм.
Таким образом, для короба 720х600 нужны две дверцы размером 716х297мм.
Аналогичным образом высчитываются и размеры фасадов выдвижных ящиков. Не забывайте отнимать зазоры между ними!
Осталось заказать распил деталей ДСП в размер с оклейкой торцов, ДВП и фасады, закупить фурнитуру и крепеж для сборки модулей кухни.
Инструмент
Для изготовления деревянных изделий понадобятся:
- циркулярная пила;
- фуговальный станок;
- рейсмус;
- фрезеровальный станок;
- торцовочная пила;
- ручной фрезер;
- электрорубанок;
- электролобзик;
- сверлильный станок;
- долбежный станок;
- дрель;
- шуруповерт.
Список приведен внушительный. Это целый цех по производству мебели. Такими станками похвастаться может не каждый. При желании, можно обойтись необходимым минимумом. А недостающую аппаратуру заменить ручным инструментом, из которого можно изготовить те же фуговальные и циркулярные станки. В рамках нашей статьи рассматривать подробное машиностроение не будем. В этих целях в интернете много специализированной литературы, а также видео-обзоров подходящей тематики.
А вот для сборки мебели из ДСП понадобится на порядок меньше специализированной оснастки. Нужно иметь:
- шуруповерт;
- электролобзик;
- дрель;
- отвертки;
- ручную пилу;
- правило;
- столярную линейку;
- рулетку;
- отвес.
Последний нужен для установки вертикальных стоек строго перпендикулярно поверхности пола.
Смотрите такжеДизайн кухни 2021 года: модные решения оформления интерьера
Прямая кухня своими руками: нюансы установки гарнитура по месту
Сначала собирается и выставляется нижний ряд кухни. Все кухонные столы-тумбы выравниваются в единый горизонт с помощью регулировки ножек и стягиваются между собой на специальные межсекционные стяжки.
Затем на стянутую в единый ряд конструкцию накладывается столешница, при необходимости подпиливается под кривизну стен. При глубине модулей в 500мм свес сзади столешницы оставляется 50мм – чтобы была возможность установить духовой шкаф и врезать мойку.
Столешница притягивается изнутри на длинные саморезы к планкам кухонных модулей. А в районе стола-мойки крепится на уголки.
Мойку и варочную панель врезают по отмеренному и отрисованному контуру с помощью лобзика. Края реза обрабатывают силиконовым герметиком или прокрашивают, для дополнительной защиты от рассыхания и проникновения влаги.
После того, как нижние короба выставлены, а верхние шкафы навешены, можно приступать к установке фасадов. Она не вызовет затруднений, если размеры фасадов посчитаны правильно, а короба столов-тумб и шкафов стянуты в единой плоскости.
С помощью регулировки мебельных петель можно скрыть мелкие погрешности и выставить все зазоры симметрично относительно коробов прямой кухни.
Современные кухонные гарнитуры состоят из отдельных модулей, навесных шкафов, напольных тумб и пеналов. Целостный вид мебели придают объединяющие элементы: единая кухонная столешница, фартук, карниз и цоколь.
Если хотите сэкономить – «набирайте» кухню россыпью из модулей серий известных производителей. Но будьте готовы к компромиссным решениям: подобрать идеально в размер и нужного наполнения кухню из стандартных модулей вряд ли получится.
Другой бюджетный вариант – сделать кухню своими руками. Чертежи кухонных шкафов с размерами для изготовления помогут вам в составлении дизайн-проекта и последующем расчете расходов на приобретение материалов и комплектующих.
- Виды кухонных шкафов
- Чертежи и размеры навесных кухонных шкафов
- Чертежи с размерами напольных кухонных шкафов и пеналов
Место установки розеток
Когда электрически розетки правильно расположены в любой комнате, гостиной или кухне, становится уютнее. Сегодня в наших квартирах очень много самой разной бытовой техники, поэтому если заранее не спланировать установку розеток, в помещении появится большое количество удлинителей.
Кухня всегда требует большую подачу электричества, так как на её площади располагается почти вся бытовая техника.
Схема установки розеток на кухне
К великому сожалению, когда планируется эргономичный дизайн угловой кухни, игнорируется разработка плана по установке розеток.
Как результат, возникают большие сложности, когда требуется подключить какой-либо прибор. Чтобы такого не происходило, нужно составить план, на котором указать точное расположение техники.
Установка кухонных розеток не ограничивается только одними стенами. Их можно располагать на рабочем фартуке или прямо на столешнице.
Когда используется встроенная бытовая техника, допускается установка розеток сзади стенок мебели. В этом случае высота установки от плоскости пола не должна превышать 60 см. Чтобы к розетке имелся свободный доступ, в стенках кухонной мебели прорезаются специальные отверстия. По технике безопасности, розетки для встроенной бытовой техники должны располагаться на расстоянии менее одного метра от аппарата.
Вытяжка считается стационарной техникой, поэтому для неё монтаж розетки делается выше кухонной мебели примерно на пять сантиметров. Когда устанавливаются розетки, обязательно учитывается местонахождение вентиляционного гофроотвода. Доступ к электросети должен быть свободным, гофроотвод не должен этому препятствовать.
Виды кухонных шкафов
Принципиально разную конструкцию имеют навесные и напольные шкафы.
Среди навесных модулей можно выделить следующие разновидности:
- Прямой кухонный шкаф. Типовая конструкция дополняется полками, иногда ящичками или посудосушителями, встроенной подсветкой. Может закрываться одной дверцей или двумя, горизонтально или вертикально.
- Угловой кухонный шкаф. Чаще всего используют трапециевидную симметричную конструкцию. Иногда заменяют ее на Г-образную, в которой не одна скошенная дверца, а две, расположенные перпендикулярно относительно друг друга.
- Шкаф под вытяжку. Конструкция различается для разных встраиваемых вытяжек. Перед проектированием лучше посмотреть нюансы встройки конкретной модели в техпаспорте.
- Шкаф над холодильником. Если холодильник невысокий, то над ним можно разместить дополнительное место для хранения. Его преимущество – увеличенная глубина, по сравнению с остальными навесными модулями.
- Навесные модули со встроенной бытовой техникой – микроволновкой, газовой колонкой, аэрогрилем и т.д. Проектируются индивидуально, под размещение на кухне и габариты самих предметов.
Напольные кухонные тумбы также можно разделить по видам:
- Прямые. Стандартная конструкция короба дополняется вложенной полкой или выдвижными ящиками, различными системами хранения.
- Угловые. В отличие от навесных шкафов, трапециевидные угловые тумбы используются редко – слишком много пространства они «съедают». А вот прямые с фальш-панелью и Г-образные с дверцей-трансформером пользуются популярностью.
- Торцевые. Заканчивают обычно ряд кухни скругленным или скошенным модулем. Он имеет характерную треугольную конструкцию, оснащается прямой или радиусной дверцей. Или остается открытым, со скругленными или спиленными полками.
- Под мойку. Принципиальных отличий в конструкции стола-мойки от угловых и прямых кухонных тумб два – отсутствие задней стенки и планки, к которым крепится столешница, располагаются вертикально, чтобы не мешать врезу чаши мойки. Длина и глубина тумбы должна соответствовать размерам мойки.
- Под встраиваемую духовку. Шкаф имеет нишу 600х600 для расположения духового шкафа. В некоторых моделях требуется предусмотреть дополнительную вентиляцию (врезается специальная решетка в столешнице).
- Пеналы. Чаще всего разрабатываются под встройку бытовой техники – холодильника, духового шкафа, микроволновки, стиральную или посудомоечную машину. Но нередки варианты и пеналов с полками и ящиками, оформленными под буфет.
Особенности чертежей угловой кухни
Расчет углового гарнитура начинают с нижней секции, с углового модуля. Он считается опорной и отправной точкой дальнейшего размещения мебели и приборов. В остальном, отличий от чертежей линейного гарнитура – нет.
От углового шкафа размещают бытовую технику. Уделяя газовому оборудованию особое внимание. Расставляют стандартные и нестандартные модели мебели.
Размер деталей просчитывается несколько раз, прежде чем наносят на эскиз. Используя трапециевидный модуль, можно модернизировать линейную кухню в угловую, без внесения иных изменений. Чаще всего, в него помещают мойку.
Скачайте бесплатно!
Размер дистрибутива:85 МБ
Как создать макет кухни в 3D конструкторе:
Шаг 1. Нарисуйте комнату
Для начала создайте прототип своей кухни в программе. Если у вас есть чертёж — вы можете загрузить его в проектировщик и обвести. Но никакой сложности не составит и нарисовать комнату с нуля — просто выберите размеры и обозначьте стены мышкой. Когда помещение будет завершено — отобразится его площадь.
Следить за процессом создания комнаты можно сразу в двух окнах
Шаг 2. Выберите отделку
Подумайте о том, какой внешний вид вы хотите придать своей кухне. Желаете сделать её светлой и цветастой или сдержанной и в тёмных тонах? В Дизайне Интерьера 3D есть материалы на любой вкус. Перейдите в раздел «Свойства» комнаты и переключайтесь между вкладками «Пол», «Стены», «Потолок», подбирая варианты оформления. Вам доступны деревянные и каменные покрытия, ковры, ламинат, плитка, разнообразные обои и многое другое. Вы также можете устроить тонкую настройку внешнего вида комнаты, отрегулировав, например, напольные и потолочные плинтуса.
Каждый элемент отделки можно настроит самостоятельно — даже величину узора
Шаг 3. Добавляем мебель и освещение
Теперь самая важная часть — расстановка мебели. Если вы не знаете, какого типа гарнитур выбрать, поищите варианты в специализированных каталогах. В программе есть всё необходимое для наглядного моделирования. К вашим услугам множество столов, тумбочек, кресел, подвесных шкафов. Вы можете сделать кастомный холодильник, плиту, мойку — всё это настраивается по размерам, цвету, текстуре и другим параметрам. Также не забудьте подобрать светильник.
Проектирование происходит наглядно
Шаг 4. Сохраняем проект
Когда макет кухни полностью готов — вы можете совершить по нему виртуальную прогулку в режиме 3D, тогда от ваших глаз точно не скроются мелкие недостатки планировки. Также можно произвести расчёт сметы на ремонт прямо в программе — в ней содержится удобный калькулятор стоимости материалов. Всё готово? Сохраните проект в формате DIP или в одном из графических (в виде картинки или PDF-документа). Также есть возможность распечатать план или перейти в режим фотореализма, где визуализация будет приближена к реальности.
Распечатайте проект, чтобы взять его с собой в магазин
















 






 
 
 
							
							
						 
							 
 
