Высота 9-этажного дома в метрах – относительная величина, которая зависит от того, к какой серии жилых домов относится данная постройка. Строительство жилых зданий в отдельные периоды производилось по типовым проектам, а они имели некоторые отличия в планировке, высоте этажа, количестве секций.
Поэтому для определения точных параметров и достоверной информации о высоте девятиэтажки необходимо наличие конкретной технической информации. Если нужна средняя высота, ее называют от 27 до 30 метров. Иногда, чтобы ответить на вопрос, сколько метров в 9-этажном здании, нужно учитывать крышу, цокольный этаж и дополнительные архитектурные украшения.
Проект 9 ти этажного жилого дома
Eliza
27 мая 2021
222
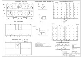
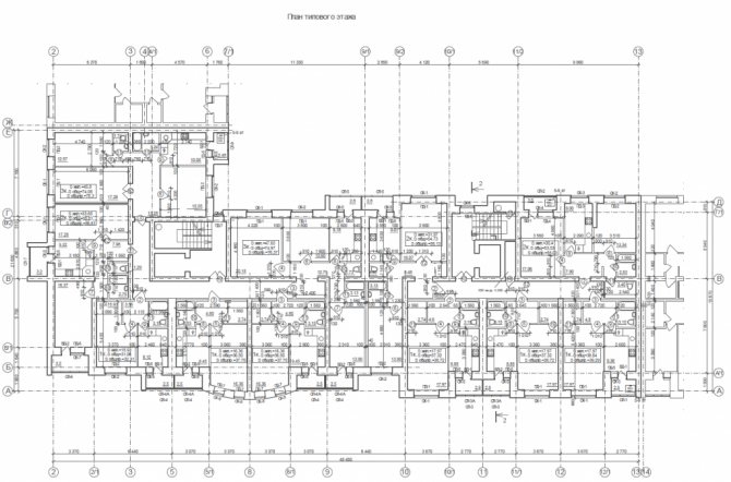
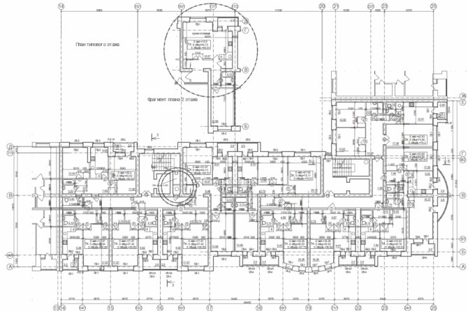
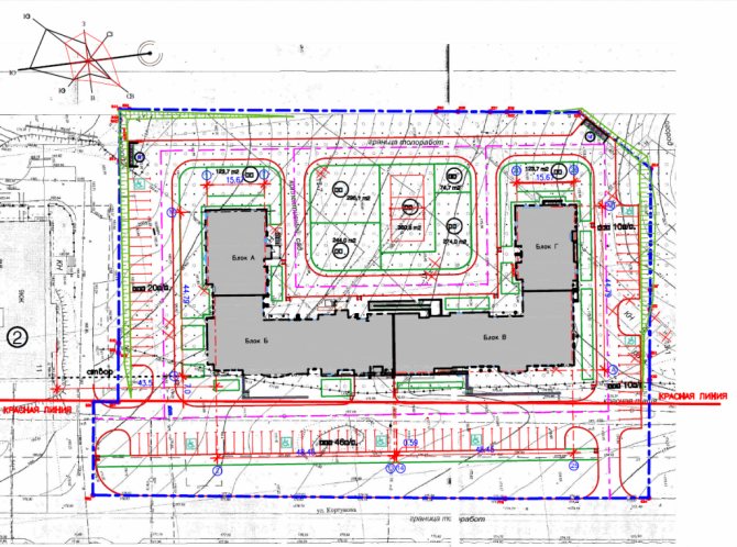
В данном проекте разработан 9 этажный жилой дом. При проектировании применялись действующие в настоящий момент нормы. Проектируемое здание отвечает всем требованиям, предъявляемым к среднеэтажному жилому дому. Проект выполнен на двух листах формата А1 в AutoCAD. Габаритные размеры здания в осях: 52800х12000 мм. Общая высота здания — 30400 мм.
Чертежи проекты / Архитектурные чертежи. Многоэтажные дома и здания
Технико-экономические показатели проектируемого объекта:
- степень огнестойкости здания: II;
- степень ответственности здания: II;
- класс функциональной пожарной опасности жилого дома: Ф1.3;
- класс функциональной пожарной опасности офисных помещений: Ф4.3;
- класс конструктивной пожарной опасности: СО;
- площадь застройки: 2061,3 кв. м;
- строительный объем: 60135,0 куб. м;
- общая площадь квартир (с учетом лоджий): 11488,20 кв. м;
- жилая площадь: 5985,20 кв. м;
- количество квартир всего: 278 шт;
- однокомнатные квартиры: 199 шт;
- двухкомнатные квартиры: 79 шт;
- общая площадь встроенных помещений: 423,0 кв. м.
Отопление жилого дома в г. Ярославль
Наталья Федорова
18 мая 2021
302
В результате проектирования разработаны планы и схемы системы отопления, определены диаметры трубопроводов, определена поверхность нагревательных приборов, составлена спецификация отопительного и материалов. Система водяного отопления, однотрубная, с верхней разводкой, тупиковая, с насосной циркуляцией и унифицированными приборными узлами.
Чертежи проекты / Отопление проекты
Односекционный девятиэтажный жилой дом с лифтом крупнопанельный
mari.naruta
17 апреля 2021
1 069
Курсовой проект. Содержит РПЗ и чертежи: план типового этажа, фасад 10-1, разрез 1-1, план фундаментов, план перекрытий, план кровли, фрагмент входа, узлы 1,2,3,4,5, календарный график производства работ нулевого цикла. Такое конструктивное решение предусматривает применение в качестве несущих и ограждающих элементов трёхслойных железобетонных
Чертежи проекты / Архитектурные чертежи. Многоэтажные дома и здания
Характеристики строений
В предыдущем пункте статьи вскользь были упомянуты основные серии МКД в СССР. Для лучшего понимания концепции строительства таковых давайте рассмотрим их характеристики в следующей таблице:
| Серии МКД | Сталинские | Хрущевские | Брежневские | 
| тип строения | кирпичное | панельное, кирпичное | панельное, кирпичное | 
| этажность | до 5 | 5-10 | 5-16 | 
| наличие лифта/мусоропровода | отсутствует | отсутствует | имеется | 
| количество комнат в квартирах | до 4 | до 4 | до 5 | 
| особенности квартир | крупногабаритность, совмещенность санузла, деревянный базис перекрытий, изоляция комнат, небольшие кухни, высокие пололки и большая площадь | малогабаритность, совмещенность санузла, нет изоляций комнат, стены в доме преимущественно несущие, малые кухни, низкие потолки и небольшая площадь | средние габариты, разделенность санузла, изоляция комнат, стены в большинстве не несущие, средние кухни, средние потолки и средняя-большая площадь | 
| стоимость | средняя-высокая | низкая | средняя | 
| теплоемкость | средняя-высокая | низкая-средняя | стабильно средняя | 
Девятиэтажный кирпичный жилой дом с техподпольем и крышей с теплым чердаком
komarovas
19 февраля 2021
1 309
В курсовом проекте рассмотрен девятиэтажный кирпичный жилой дом с техподпольем и крышей с теплым чердаком для возведения в г. Санкт-Петербург. Здание по проекту имеет сложную геометрическую форму. Входная зона состоит из крыльца с простенком. Крыльцо имеет широкий козырек с изгибом под пандус. Высота крыльца в 300 мм, а пандус имеет уклон i=8%.
Чертежи проекты / Архитектурные чертежи. Многоэтажные дома и здания
Районы подлежащие демонтажу
Девятиэтажки под снос в Москве: адреса еще не названы. Известно лишь то, что эта реновация коснется всех районов Москвы:
- ЦАО;
- ЮАО;
- СВАО;
- СЗАО;
- САО;
- ВАО;
- ЮЗАО;
- ЮВАО.
Пока известно точно, что в районе Кузьминки будет снесено 12 многоквартирных 9-тиэтажных домов, 4 дома в Северном Измайлово и 6 домов в Южном Медведково.
Ознакомиться с точными адресами в скором времени можно будет на официальном сайте мэрии города Москвы.
Возведение 9 — этажного крупнопанельного жилого здания
Alyona
1 сентября 2020
692
Технологическая карта разработана на монтаж типового этажа 9 ти этажного жилого крупнопанельного здания по серии 185-013 с размерами в плане 103,4х12 м. 9-ти этажное здание имеет размеры в плане 103,4х12 м. Высота этажа-3.0 м. В перечень работ технологической карты (ТК) входят: монтаж сборных элементов (наружные и внутренние стеновые панели,
Чертежи проекты / Строительство, технология монтажа
Самозащита с юридической стороны – правовые аспекты
Те граждане, кто дал твердый отказ на снос жилого дома, имеют право обратиться в суд. Но в этом случае судебное решение принимается в пользу государства, так как они действуют согласно официальному законопроекту – Читать закон. Как показывает практика, гражданин в этом случае ничего не выигрывает. Возможно суд решит предоставить ему право выбора нового жилья. Но это бывает крайне редко. Также судебные разбирательства не могут повлиять на место многоквартирного дома в общей очереди.
Кроме этого, собственник может выбрать денежную выплату от государства взамен изъятой квартиры.
Жилой 9-ти этажный дом с пристроенным непродовольственным магазином из крупноразмерных элементов
Max
27 мая 2020
- 100
2 053
В курсовом проекте спроектирован жилой 9-ти этажный дом из крупноразмерных элементов, выполнен теплотехнический расчет наружной стены панельного здания. В составе: фасад 1-15, генеральный план, экспликация зданий и сооружений, ТЭП, план на отметке 0.00, экспликация помещений, план перекрытий, план кровли, план типового этажа, разрез 1-1, план
Чертежи проекты / Архитектурные чертежи. Многоэтажные дома и здания
9-ти этажный двух секционный жилой дом на 72 квартиры
rihhansu
26 февраля 2020
- 100
2 723
На основании выданного задания разработан дипломный проект на тему: «9-ти этажный двух секционный жилой дом на 72 квартиры в г. Аксу». Здание состоит из 9-ми этажей. Размеры здания в плане: 41,305 х 14,40 м. Высота первого этажа – 3,3 м, высота остальных этажа – 3,3 м, глубина заложения фундамента -1,77 м показан на разрезе 1-1.
Чертежи проекты / Архитектурные чертежи. Многоэтажные дома и здания
9-ти этажное панельное жилое здание
Max
2 августа 2019
- 60
4 272
В плане здание имеет прямоугольную форму. Ширина и длина здания по координационным осям составляет: ширина А-Д= 13,2 м; длина 1-13 = 24,3 м. Высота здания – 31,62 м.Здание запроектировано с подвалом и теплым чердаком. Здание девятиэтажное с высотой этажа 3 м. Конструктивная схема здания – перекрёстно-стеновая, стены панельные, трехслойные.
Чертежи проекты / Архитектурные чертежи. Многоэтажные дома и здания
Среднеарифметическая и стандартная высота
Условно-усредненная высота девятиэтажного дома в метрах обычно определяется в интервале 27–30 м. Для получения предварительной информации этого вполне достаточно.
В тот период, когда строительство осуществлялось централизованно и не зависело от финансовых возможностей или прихотливых вкусов частного застройщика.
Основными определяющими характеристиками были – быстрота, целесообразность и экономия средств. Выбор этажности тоже зависел от этих трех направлений. Пятиэтажные хрущевки массово строились именно в таком варианте: это было максимальное количество этажей, не требовавшее сооружения лифта для подъёма на верхние ярусы.
В городе
Высота девятиэтажного здания выбрана с учетом длины лестницы пожарной машины. Она составляет 28 м, а это позволяет не оборудовать дополнительные запасные выходы, противопожарные переходы и экстренные варианты спуска при пожаре. Специальной машины будет вполне достаточно, чтобы в случае необходимости спасти обитателей дома.
Пытаясь определить, какая высота 9-этажного дома, люди рассуждают по-разному, и способы вычислений тоже применяют вариабельные:
- Самый простой – умножение числа этажей на 3 метра, как и в случае с пятиэтажкой, цифра 27 диктуется количеством этажей, умноженным на усреднённое число метров. Но это и самый примитивный метод, потому что в нем не учитывается высота перекрытия и другие особенности применяемого проекта. Ведь в здании может быть подвал, цокольный этаж и чердак, разная высота потолков. Характерным примером может послужить московский вариант 6-этажных МКД, в которых на первом этаже строились помещения для магазинов. Ответ, сколько метров в высоту в таких зданиях, совпадает с самой частотной вариацией стандартной панельной девятиэтажки (27–30 м).
- Немного сложнее – расчет исходя из высоты потолка. В разное время он составлял от 2,64 до 2,7 м, но в более новых постройках могли делать даже 2,8. Тем не менее, чтобы не перемножать высоту потолка на количество этажей, все равно используется усредненный параметр. Это примерно 3 м на каждый этаж, даже несмотря на особенности проекта. Так выводятся размеры 9-этажного дома в метрах в высоту, но это все равно выходит не 27, как следовало бы ожидать, а 30 м, при учете остальных составляющих – чердака, фундамента, цоколя, перекрытий.
- Последний метод основан на изучении проекта. Он потребует довольно значительных временных затрат – придется узнавать в ведомственных организациях обозначение по стандартизированному типу, а затем оттуда выводить точную высоту здания. Зато таким образом можно достоверно определить, какой высоты 9-этажный дом, в котором намечено к приобретению вторичное жилье или обитает человек, заинтересовавшийся данной проблемой.
Около дороги
Современное строительство
В современном жилом возведении зданий уже довольно редко применяется строительство, в котором используются стандартные нормативы, да и 9 этажей в масштабах больших городов – тоже крайне редкая цифра. Чтобы не допускать расползания мегаполиса в ширину, и при этом захвата плодородных земель, масштабное строительство проводится в последней из трех категорий многоквартирных домов.
9-ти этажный жилой кирпичный дом
Max
13 октября 2017
7 665
Проектируемое здание по капитальности относится ко 2 группе. Конструктивная схема здания с несущими поперечными стенами. Жёсткость здания обеспечивается взаимной связью продольных и поперечных стен и связью их с плитами перекрытия.
Чертежи проекты / Архитектурные чертежи. Многоэтажные дома и здания
Архитектурно-планировочное решение.
Объёмно-пространственное решение обусловлено градостроительной ситуацией, в которой находится участок проектирования, и архитектурным окружением, сложившимся на настоящий момент времени. Проектируемое здание граничит с рядовой застройкой советского периода. Здание П-образной формы запроектировано 2-х секционным, 9-ти этажным. (код 10300 по градплану) Абсолютная отметка от дневной поверхности до карниза -28 м, до конька — 33 м, что соответствует требованиям ПЗЗ для данного участка. Последний 9 этаж решен в виде мансарды, в конструкциях наклонной полукруглой кровли. Так как здание выходит на ул. Детскую только боковым фасадом, то основным акцентом объёмно-пространственного решения является угловая закругленная часть здания с выделенными вертикальными остекленными эркерами гостиных и кухонь, объединяющимися на уровне карниза и имеющими завершение в виде остекленного сегмента купола. Здание поднято на небольшой стилобат, облицованный гранитом, являющийся эксплуатируемой кровлей паркинга. Первый этаж также имеет рустованную облицовку из натурального камня. В качестве наружной отделки предлагается декоративная штукатурка с каменной крошкой 2-х цветов. Наклонные металлические кровли, фронтоны по трем основным фасадам, горизонтальные карнизы, обрамление окон из вертикальных объемных тяг, наличие легких металлических ограждений балконов — все эти элементы являются характерными для исторической застройки. В тоже время вставки из стекла и алюминия угловых эркеров гостиных комнат, частичное остекление балконов и лоджий со стороны двора, остекленная конструкция купола придают легкость и современный вид проектируемому зданию. По заданию Заказчика здание относится к классу «комфорт». Квартирография соответствует заданию на проектирование, основная масса квартир -1 и 2- х комнатные квартиры. Все квартиры имеют выходы на балконы или лоджии, в планировочном решении каждой квартиры заложено функциональное зонирование и возможность объединения гостиных с кухнями. На 1 этаже запроектированы офисные помещения (код основных видов использования по градплану 12020). Каждое помещение имеет 2 эвакуационных выхода. По заданию Заказчика офисы запроектированы свободной планировки с выделением зон санузлов. Здание II степени огнестойкости, основные несущие конструкции — монолитный ж.б.каркас и монолитные ж.б. стены толщиной 200 мм (REI 45) и безбалочные монолитные перекрытия (REI 60). В цоколе расположен паркинг на 66 машин ( в случае 2-х уровневого расположения автомобилей ) или на 53 автомобиля в случае традиционной расстановки машин. Паркинг запроектирован как самостоятельный пожарный отсек, отделенный от помещений 1 этажа монолитным ж.б. перекрытием REI 60. В паркинг возможно попадание из обеих секций по основным лестнично-лифтовым холлам через тамбур-шлюзы с подпором воздуха в уровне паркинга. Лестницы отделены от помещений 1 этажа кирпичными перегородками 120 мм (REI 45). Украшением дворового пространства являются фонари паркинга, конструкции которых решены в виде цветочных клумб, а в ночное время являющиеся яркими световыми элементами. Лестнично-лифтовые холлы оборудованы грузопассажирским лифтом, грузоподъемностью 630 кг с возможностью транспортировки носилок и передвижения инвалида на коляске, и мусоропроводом с организацией вывоза мусора из мусоросборных камер « с колес». Лестнично-лифтовые холлы отделены от квартир поэтажными коридорами. Входы в жилые секции и офисы оборудованы пандусами. Фундаменты: плита 500 мм по ростверкам на свайном основании. Несущие стены: монолитные жб. стены толщиной 200 мм со 2 по 9 этажи. На 1 этаже и в цокольном этаже: монолитный ж.б каркас и монолитные ж.б.стены 200 мм. Перекрытия — безбалочные, монолитные ж.б. толщиной 230 мм( между цоколным и 1этажом) и 200 мм ( на вышележащих этажах Наружная отделка: 1этаж- облицовка натуральным камнем (или керамогранитом), выше 1 этажа- штукатурка по сетке. Наружные стены – частичное заполнение кирпичом 250мм с утеплителем «Роквул ФАСАД. БАТТС.» 150 мм , частичное заполнение газобетоном 200мм плотностью D=500-600кг/м³, B=2,5МПа, F=35 с утеплителем «Роквул ФАСАД. БАТТС.» 150 мм. Кирпичная кладка простенков выполняется из пустотелого кирпича М 100 на растворе М 100 «цепной» перевязки с армированием конструктивной сеткой через 5 рядов. Кирпич рядовой, пустотелый, одинарный, размером 1НФ, марки прочности М100, класса средней плотности 1,4, марки по морозостойкости Р50 Кирпич КОРПу (КОЛПу) 1 НФ/100/1,4/50/ГОСТ 530-2007 Через 700 мм по высоте сетка анкеруется с выпусками из монолитных ж.б. стен. Кладку из газобетонных блоков армировать через 4 ряда арматурой АIII Ø 8мм. Кровля — плоская совмещенная, с внутренним водостоком и наклонная закругленная металлическая по металлическим стропилам, оштукатуренным по сетке. Угловой сегмент купола запроектирован остекленным объемом в металлических конструкциях Кирпичные парапеты выкладываются из полнотелого кирпича «Победа КНАУФ». Окна – металлопластиковые с двойным вакуумным стеклопакетом. Витражное остекление – однокамерный стеклопакет и одинарное стекло. Фонарь выполняется из металлических конструкций со специальным покрытием. Остекление – триплекс с закаленным стеклом EI 45. Входные двери – алюминиевые витражные и металлические утепленные. Перегородки выполняются из газобетона и полнотелого кирпича толщиной 120 мм, в «мокрых» помещениях с последующим оштукатуриванием. Перемычки в кирпичных стенах ж.б. брусковые ГОСТ 948-84. Стены монолитные железобетонные толщиной 200 мм. Перегородки в мокрых помещениях выполняются из полнотелого кирпича толщиной 120 мм с последующим оштукатуриванием, частично остекленные. Перегородки, показанные на чертежах пунктиром, выполняются самими арендаторами. Запроектированы перегородки из ГКЛ с двух сторон по металлическому каркасу с заполнением минватой (ТИП ОС 202 по альбому «Комплектные системы «GYPROC» Выпуск 1) толщиной 125 мм EI 60. Стены монолитные железобетонные толщиной 160 мм , 200 мм и 250 мм. Перемычки в кирпичных перегородках -ж.б. брусковые (ГОСТ 948-84). Для вентиляции используются ж.б. вентблоки БВ-33 400х800. В помещениях общественного назначения заложена чистовая отделка стен и потолков (см. «Ведомость отделки помещений»). Дизайн интерьеров магазинов, вестибюля и холлов выполняется по отдельному заданию. В арендуемых помещениях чистовая отделка не предусматривается. В проекте заложены подвесные потолки « ARMSTRONG»и подвесные потолки из гипрока по металлическим направляющим.
Конструктивные решения
Здание представляет собой единый блок размером 64 х 35,5 м, состоит из 9-ти этажной части и 1-этажного подземного паркинга. Конструкции здания включают свайное основание, ростверки плиту по ростверкам, колонны, наружные и внутренние продольные и поперечные стены, стены лифтовых шахт, перекрытия и покрытия, металлические конструкции мансарды. На данный момент площадка строительства расчищена, частично выполнено свайное поле по чертежам. Откопанный на момент обследования котлован засыпан строительным мусором. Параллельно торцевой стене дома №2/20 лит.Б на удалении 1,65 м устроено шпунтовое ограждение из стального шпунта профиля «Ларсен-4» длиной 12м. Большинство звеньев шпунта не имеют сцепления замками и вдавлены с небольшим зазором. Перед выполнением земляных работ по откопке котлована необходимо выполнение герметизации существующего шпунтового ограждения методом инъецирования тампонажных растворов или организацией противофильтрационных завес. Согласно обследованию, несущей способности шпунтового ограждения недостаточно, расчетные деформации превышают предельно допустимые. Проектом предусмотрено раскрепление шпунтового ограждения временными подпорками на момент производства работ, а затем конструкциями подземного паркинга в процессе эксплуатации. Кроме того, для уменьшения воздействия на дом №2/20 лит.Б предусмотрено выполнение шпунтового ограждения вдоль осей 21 и М из стального шпунта профиля «Ларсен-4» длиной 12м. В проекте принят свайный фундамент. Используемые сваи сечением 350х350 мм серии 1.011-1 вып.8 марки С220.35-Св2,3, погружаемые до абс. отм. -22,200 методом статического вдавливания. Часть существующих свай (124 шт.) используется в фундаментных конструкциях, остальные срубаются на 400 мм ниже ж/б конструкций и исключаются из работы. За опорный слой свайного основания приняты суглинки легкие пылеватые с гравием и галькой (ИГЭ-9, Е = 120кг/см2, IL = 0,34, φ = 15град, с = 0,12 кг/см2). Значение расчетной нагрузки на сваю по результатам испытаний – 125 т.с. Сваи имеют жесткое защемление в плиту ростверка, обеспечивающееся наличием выпусков арматуры свай, заделанных в плиту ростверка на величину анкеровки арматуры. Свайные кусты объединены в ростверки толщиной 800 мм. Между ростверками и под стенами 1-этажной части выполнена плита ростверка толщиной 500 мм. Фундаментные конструкции выполняются из бетона B30, W8, F150. Несущая система здания связевого типа, т.е. все горизонтальные нагрузки воспринимаются диафрагмами и ядрами жесткости. Пространственная жесткость здания обеспечивается совместной работой вертикальных несущих конструкций, объединенных жесткими дисками междуэтажных перекрытий. Железобетонные колонны здания приняты сечением 400х400 мм, 500х300 мм, 550х400 мм, 600х200 мм, 600х300 мм, 720х200 мм, 1000х200 мм, 1400х200 мм. Внутренние и наружные стены здания приняты толщиной 200 мм, стены лифтовых шахт – толщиной 160 мм. Плита покрытия над одноэтажным подземным паркингом на отм. -1,400 выполняется толщиной 300 мм, плита перекрытия на отм. -0,070 – толщиной 230 мм, плиты перекрытия типового этажа и покрытия 9-ти этажной части – толщиной 200 мм.









 
 
 
 
							
							
						 
							 
 
