С 1975 по 1990 год велось строительство панельных домов серии П-47. Этот проект был создан на основе модификации П-46 и отличался двумя параметрами: отсутствием поворотных секций с 3-комнатными квартирами и первым этажом, не предназначенным для жилья. Здания не имеют внешней облицовки и окрашены в сине-белый, коричневый или светло-бежевый цвета. Дома с одно- и двухкомнатными квартирами возводились в следующих частях Москвы:
- Чертаново (южное);
- Капотня;
- Можайский;
- Тушино (южное и северное);
- Бирюлево (восточное);
- Марьина Роща.
В Подмосковье сооружения типа П-47 строились гораздо реже. Несколько зданий можно встретить в Химках, Подольске и Королеве.
Особенности домов серии II-49 (П-49Д)
Данные дома были сконструированы еще в 60-е года. Их основная цель заключалась в том, чтобы сменить в хрущевки серии К-7. Если рассматривать их конструктивные особенности, то стоит выделить следующие моменты:
- Дом состоит из нескольких секций.
- Каждая секция, в зависимости от того какое положение в доме она занимает, может быть рядовой или торцевой.
- Преимущество квартир, которые располагались в торцевых (угловых)секциях, заключается в том, что они были оснащены балконами или лоджиями.
- Количество этажей, как правило, было равно 9. Реже имели 12 этажей, как, например, в Москве.
- Несущие стены в доме располагались в продольном направлении. Их было три штуки – два по фасадам и одна внутри. Именно эта особенность повлияло на то, что жилье в таких домах проблематичны с точки зрения перепланировок, так как практически все стены между помещениями являются несущими.
- При строительстве использовались панели, состоящие из трех слоев. Наружные стены состояли из керамзитобетона.
В данной серии имеются 2 модификации домов. Первая имеет обозначение II-49П – она имеет на верхнем этаже чердачное помещение. Вторая с маркировкой II-49Д – без чердачного пространства.
Тёплое остекление балкона П-46, П-47
| Остекление пластиковыми рамами (двухкамерный стеклопакет, фурнитура Roto) | Профиль | Стоимость | 
| Брусбокс 60 мм | 29 387 руб | |
| Reachmont 60мм | 29 748 руб | |
| Reachmont 70мм | 32 518 руб | |
| KBE 58мм | 32 657 руб | |
| Montblanc 70мм | 33 110 руб | |
| Rehau 60мм | 34 295 руб | |
| Брусбокс 60 мм | 37 770 руб | |
| Reachmont 60мм | 38 472 руб | |
| Reachmont 70мм | 40 342 руб | |
| KBE 58мм | 41 724 руб | |
| Montblanc 70мм | 42 510 руб | |
| Rehau 60мм | 43 884 руб | |
| В стоимость включено: конструкция, отлив, козырёк, доставка, подъём, монтаж Дополнительно можно заказать москитные сетки и внутреннюю отделку балкона Возможно Вас заинтересует стоимость пластиковых окон для дома серии П-46/П-47 Звоните | 
| Остекление раздвижными пластиковыми рамами — тёплое (двухкамерный стеклопакет, фурнитура Roto Patio) | Профиль | Стоимость | 
| Rehau 60мм | 111 466 руб | |
| Rehau 60мм | 118 373 руб | |
| В стоимость включено: конструкция, отлив, козырёк, доставка, подъём, монтаж Дополнительно можно заказать москитные сетки и внутреннюю отделку балкона Возможно Вас заинтересует стоимость пластиковых окон для дома серии П-46/П-47 Звоните | 
Так же Вас может заинтересовать стоимость французского остекления балкона (от пола до потолка)
Технические характеристики квартир серии II-49 (П-49Д)
Если говорить об общих технических характеристиках квартир в этой серии домов, стоит отметить следующие особенности:
- Небольшой изогнутые коридор в среднем площадью 7 кв. м.
- Кухня небольшая и редко превышает параметры в 6-7 кв. м.
- В одно- и двухкомнатных чаще всего все помещения имеют свой собственный выход в коридор.
- А вот в 3, 4 и 5 комнатных одна из комнат является проходной. Из нее может быть, как один выход в соседнее пространство, так и два выхода в смежные помещения.
- Балкон или лоджия имеется только в 3-шках и больших квартирах. Причем в тех, которые располагаются в угловых секциях.
- Площадь гостиной колеблется в пределах 19-20 кв. м.
- Площадь спален от 9 до 12 кв. м.
Холодное остекление балкона П-46, П-47
| Остекление раздвижными алюминиевыми рамами (стекло 4 мм) | Профиль | Стоимость | 
| Provedal | 22 072 руб | |
| Provedal | 31 123 руб | |
| В стоимость включено: конструкция, отлив, козырёк, доставка, подъём, монтаж Дополнительно можно заказать москитные сетки и внутреннюю отделку балкона Возможно Вас заинтересует стоимость пластиковых окон для дома серии П-46/П-47 Звоните | 
| Остекление раздвижными пластиковыми рамами (стекло 4 мм) | Профиль | Стоимость | 
| Слайдорс | 27 645 руб | |
| Слайдорс | 38 141 руб | |
| В стоимость включено: конструкция, отлив, козырёк, доставка, подъём, монтаж Дополнительно можно заказать москитные сетки и внутреннюю отделку балкона Возможно Вас заинтересует стоимость пластиковых окон для дома серии П-46/П-47 Звоните | 
Варианты планировок квартир в домах серии II-49 (П-49Д)
Планировка квартир II-49 обусловлена в этой серии домов, в первую очередь, расположением несущих стен. Количество комнат варьируется от 1 до 5. Они частично являются проходными. И только в некоторых проектах, в зависимости от количества помещений, планировка была выполнена таким образом, что каждое пространство имела свой собственный выход в коридор.

Сантехнический узел был выполнен раздельно, за исключением только однокомнатных, где он был совмещенным.
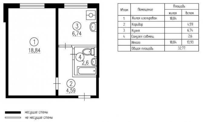
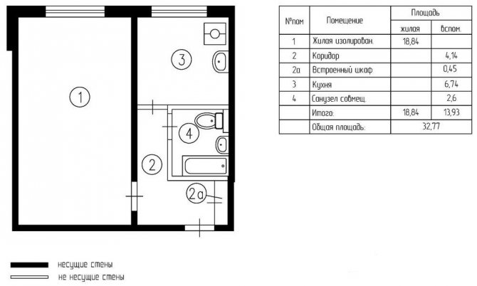
Однокомнатная
Однокомнатная брежневка II-49 Д планировка с размерами которой представлена ниже, имеет следующие особенности:
- Г-образный изогнутый коридор около 5 кв. м.
- Из коридора ведут 3 двери. Одна из них на кухню, площадь которой колеблется около 6-7 кв. м.
- Вторая дверь в санузел, в котором одновременно находится и душевая комната, и туалет. То есть в этой квартире санузел является совмещенным и его площадь не превосходит 3,5 кв. м.
- И, наконец, третья дверь ведет в гостиную площадью около 19 кв. м.



Еще одна особенность заключается в том, что нет ни балкона, ни лоджии, что не совсем удобно с точки зрения эксплуатации.
Двухкомнатная
Далее предлагается двухкомнатная планировка квартир П 49 Д с размерами:
- Коридор изогнутый, он является наиболее традиционным для этого типа домов. Площадь колеблется около 6-8 кв. м.
- Санузел раздельный, располагается в небольшом ответвление от основного коридора в непосредственной близости от кухни.
- Гостевая имеет площадь такую же, как и в однокомнатной. Оно составляет 18-19 кв. м.
- Спальня небольшая, около 9 кв. м.
Трехкомнатная
В П 49Д планировка 3 комнатная с размерами имеет следующие особенности:
- Все тот же узнаваемый и типичный для этого типа домов Г-образный изогнутый коридор небольшой площади. Хотя, в некоторых планировках использовался прямоугольный коридор с выделенным узким проходом в кухню и помещения санузла.
- Раздельный санузел, располагающийся у кухни.
- Кухонное помещение маленькое не более 6 квадратов. К тому же, здесь нет балкона, что делает его эксплуатацию весьма проблематичной, особенно для большой семьи, на которую рассчитана трехкомнатная.
- Гостиная составляет 19-20 кв. м. и имеет отдельный вход из коридора. В некоторых случаях есть небольшой специфический вход, который образует оригинальный “предбанник”. Если использовать определенные приемы дизайна, то пространство в трехкомнатной может быть использовано эргономично. Здесь может быть организована ниша или полки.
- Чаще всего одна спальня имела отдельный вход и была изолированной. А вот вторая располагалась непосредственно за гостевой комнатой, вследствие чего гостиная являлась проходной. Площади спален небольшие, не превышающие 10-12 кв. м.
- Некоторые планировки имели балкон. Он, как правило, вел из спальни. В других же типах помещений балкона не было вовсе.
Четырехкомнатная
Брежневка II 49 Д имеет следующие особенности планировки:
- Изогнутый коридор. Из него имеются только три основные выхода – на кухню, в спальню и в гостевую комнату. И еще два дополнительных выхода в сантехнические помещения.
- Гостевая является проходной – ее площадь составляет порядка 19 квадратов. Из нее ведут 2 дополнительные двери в спальню. Именно такое специфическое расположение комнат делает гостевую практически не функциональной. Ведь здесь трудно расставить мебель из-за того, что на одной стене располагается окно, на другой стене вход в коридор, а на третьей стене два выхода в спальню. Именно по этой причине большинство владельцев таких квартир сталкивается с определенными проблемами, когда организуют жилое пространство в гостевой комнате. Без специфических дизайнерских приемов здесь не обойтись. В противном случае комната останется неуютной и будет выполнять исключительно роль проходного коридора.
- Все три спальни являются стандартными и их площадь может колебаться в пределах от 7,5 до 9,5 кв. м.
- В преобладающем большинстве случаев в четырехкомнатной планировке квартиры присутствует лоджия или балкон, которые расположены по одной из спален.
Варианты перепланировок квартир в домах серии II-49 (П-49Д)
Как видно габариты не слишком впечатляющие. К тому же присутствует специфическая компоновка комнат, которая обусловлена особенностями постройки дома и наличием несущих стен внутри жилого пространства. Именно по этой причине, многие хозяева, которые приобретают такое жилье задумываются о процессах перепланировки в таком жилье. Особенно часто в II 49 перепланировка 4 комнатной интересует владельцев жилья. И происходит это по той причине, что зал является наименее функциональной комнатой, хотя он должен служить местом сбора для всей семьи.
План 4-комнатной квартиры
1 вариант перепланировки
2 вариант перепланировки
Но несмотря на это даже в однокомнатной квартире, в некоторых случаях, собственники пытаются обустроить пространство несколько иначе, в соответствии со своими потребностями и нуждами. Поэтому посмотрим все возможные варианты, как можно изменить функциональность и назначение внутреннего пространства:
- Можно обустроить проем в несущей стене между кухней и гостевой комнатой в однокомнатной или двухкомнатной планировке.
- В некоторых случаях между коридором и основной комнатной или спальней выполняют раздвижную дверь, снося часть перегородки. Это выполняется для того, чтобы не занимать часть пространства коридора или комнаты, распахивающимся полотном двери.
- Помимо того, что обустраивают дополнительные проемы встречаются перепланировки, в которых наоборот, закладываются межкомнатные проемы и переносятся в другое место. Так, например, П-49 Д планировка 2 комнатная с небольшими размерами может быть выполнена следующим образом. Из гостиной в спальню закладывается проем и выполняется он между двумя смежными спальнями с общей стеной. Правда, этот вариант хорошо подходит в случае, когда нужно разделить две спальни между двумя однополыми детьми. А родители организует себе спальное место в гостевой комнате.
План до перепланировки 1 вариант перепланировки 2 вариант перепланировки 
- В некоторых случаях, когда комнаты выходят на разные фасады здания, две дальние комнаты можно разделить небольшим коридорчиком. Правда, в этом случае, площадь одной из них будет существенно уменьшена. Но зато получаются 3 полноценные изолированные комнаты. Причем, в коридорчике может быть организована небольшая кладовая комната. Это подходит для серии II 49, поэтому такая перепланировка 3 комнатной квартиры делается тогда, когда есть в семье разнополые дети и каждому хочется иметь свой собственный угол. План до перепланировки 1 вариант перепланировки 2 вариант перепланировки
Утеплённое остекление балкона (Слайдорс) П-46, П-47
| Остекление раздвижными пластиковыми рамами (однокамерный стеклопакет) | Профиль | Стоимость | 
| Слайдорс | 30 674 руб | |
| Слайдорс | 42 411 руб | |
| В стоимость включено: конструкция, отлив, козырёк, доставка, подъём, монтаж Дополнительно можно заказать москитные сетки и внутреннюю отделку балкона Возможно Вас заинтересует стоимость пластиковых окон для дома серии П-46/П-47 Звоните | 
Советы и рекомендации по планировке и перепланировки квартир серии II-49 (П-49Д)
Всегда необходимо помнить, что организовывая второй проем или выполняя его там, где находятся несущие стены, в обязательном порядке нужно армировать конструкцию. Это делается для того, чтобы усилить стену и избежать нарушения механической прочности.
Можно обойтись и без трудоемкой перепланировки, например, разделив комнату на функциональные зоны с помощью мебели иди визуальных приемов
Другое решение – зонирование комнаты с помощью шторы, подвешенной на потолочном карнизе
Если учитывать все эти особенности и технологические моменты, то можно обустроить с максимальным комфортом и эргономичностью даже квартиру, где комнаты являются подходящими.





 
 
 
 
							
							
						 
							 
 
